欢迎光临聚设汇,装修找设计就上聚设汇!
   咨询电话:15602987227
登录    注册
聚设汇
首页 > 家装 > 深业东岭住宅设计

深业东岭住宅设计

//次卧//

//卫生间//

原本2个卫生间都好小,因为目前只住2个人

最后将2个卫生间合二为一,将洗衣房融入卫生间

住宅设计将阳台释放出来与客厅融为一体,就不用牺牲阳台作为晾衣来用

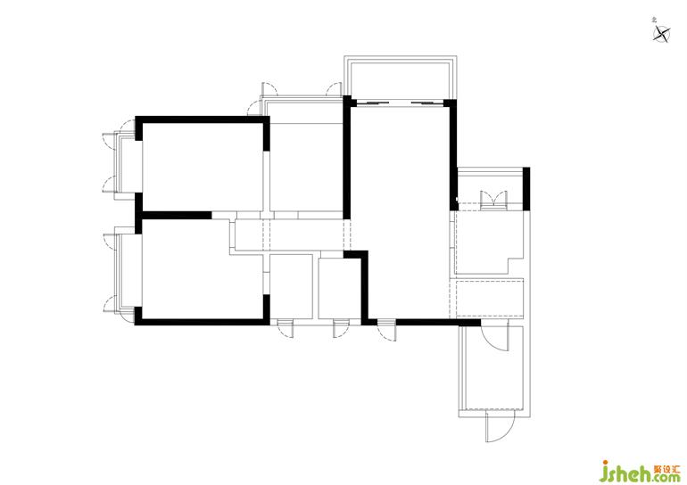
//平面图//

原始户型图

平面配置图

更多住宅设计请关注聚设汇装修平台:

境相设计工作室创始人&设计总监

设计收费:400 元/平             

擅长类型: 家装,豪宅,别墅

在线咨询

扫描二维码关注我们的微信

深圳市聚设汇文化传媒有限公司
主编热线:15602987227
总部:深圳市罗湖区梨园路128号宝能汽车大楼416单元
佛山、东莞、成都、重庆、福州、厦门、南昌、武汉、
杭州、苏州、温州、郑州、长春、沈阳、贵阳、柳州、
哈尔滨、九江等城市设立办事处
© 2017-2021 Jsheh.com 版权所有 粤ICP备17079093号
展开
回到顶部