坐标:深圳
地址:博林君瑞
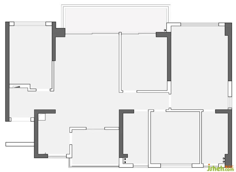
面积:130㎡
设计单位:境相设计
施工单位:境相工程
软装布置:境相软装
设计优化:
1.全屋多处定制高柜,提供充足收纳空间,保证空间整洁有序。
2.调换原始餐厨空间,令两处格局更加规整,打造流畅生活动线。
3.延伸的L型柜体,玻璃高柜承担酒柜功能,矮柜作为水吧区,空间机动性更强。
4.整屋采用外推窗设计,密封性、隔音效果更佳,打造安静、舒适的居住氛围。
5.主卫、公卫对称布局,在统一调性的基础上,又以深浅色调进行区分。
家不止是房子,而是爱的总和
Home is not just a house, but the sum of love.
三代同堂的居所是怎样的?我们找到空间与人的平衡点,用纯粹灰调,渲染空间的开阔尺度,重组餐厨空间,营造围合、明亮的用餐环境。
在细节处,融入不同的材质、肌理,深圳装修设计为居者营造专属感。最终,呈现出一个温馨、舒适与私人空间兼具的现代之家。
玄关丨Porch

繁复的纹理、材质,分割出纯灰度空间的层次,光影交织、高柜俨然,引入归家仪式感。
The complex textures and materials divide the level of pure gray space, the light and shadow are intertwined, and the tall cabinets seem to introduce a sense of homecoming ceremony.
客厅丨Living Room

空间线条规整利落,尽显简约格调。以高饱和软装点染,冷暖色调比例均衡,视觉焦点自然过渡。
The space lines are neat and neat, showing a simple style. With high saturation and soft decoration, the proportion of cold and warm tones is balanced, and the visual focus is naturally transitioned.

水墨白岩板,纹路流畅,泅染出清新质感,融入些许木格栅的灵动,空间气质更显充盈。
The ink-and-wash white stone slabs have smooth textures and a refreshing texture, blended with a little wood grille, and the spatial temperament is more full.


以高级灰为底色,引入明媚采光,打造轻盈的空间质感。无主灯设计贯穿整屋,照明主次分明,赋予多变灯光氛围。茶几、边几统一圆弧形,巧妙消融空间距离感。
With high-grade gray as the background color, bright lighting is introduced to create a light space texture. The no-main light design runs through the whole house, and the lighting is distinguished by priority and subordinate, giving a changeable lighting atmosphere.