项目坐标:深圳
项目地址:福源花园
项目面积:120㎡
项目户型:三室两厅
设计单位:境相设计
本案常住人口一家三口,80后年轻夫妻和可爱的女儿。屋主在好好住上种草了我们一套案子,第一时间和我们取得联系,全程配合度极高,沟通很愉快。
男主人从事地产行业,喜欢现代简约风格,希望家有星级酒店的舒适感,室内设计师打通了客卧,兼做书房,最大化利用空间。全屋多处定制高柜,提供充足收纳空间,保证家整洁有序。融入榻榻米、大理石等时髦元素,让120㎡的家,集时尚、实用、温馨为一体。
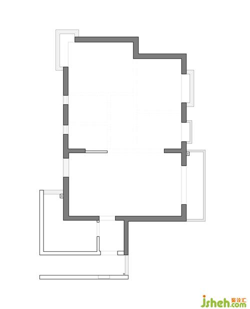
平面布置图:
设计优化:
1.玄关定制整面鞋柜,提供收纳空间,让入户充满仪式感;
2.打通客卧,用玻璃隔断,兼做书房,提升通透感,空间功能也随场景随意切换;
3.儿童房设计榻榻米、书桌、衣柜,保证不同年龄段的生活、教育需求;
4.公卫设计单独淋浴,保证干湿分离,日常使用更方便、舒适。
玄关 | Entrance
走廊型玄关赋予入户过渡感,室内设计师定制整面嵌入鞋柜,减少空间占用,保证全家日常鞋服的收纳,中间局部镂空,可搁置小物件,配合灯光设计,让归家充满仪式感。
客厅 | Living Room
灰白大理石地砖,勾勒出空间简约气度,无主灯设计,拉升整体视觉层高,辅以隐藏灯带,营造多样化照明氛围。
Natuzzi edition组合茶几,高低错落,不同造型、材质的碰撞,迸发出客厅的活力与趣味。
电视墙定制整面浅灰柜体,大气时尚,电视内嵌其中,视觉更显统一。
室内设计师以地面抬高的设计,赋予了空间更多变化,并替代电视柜,承担着摆放音响等配件的功能。

Natuzzi edition皮沙发,打破了灰白世界的单调,柔软的材质,利落的造型,让客厅自在而随性。层板的设计,兼顾陈列展示作用,造型各异的摆件,为家充满艺术气息。
餐厅 | Dining room
餐厅保留原始布局,室内设计师仅在两侧定制通高橱柜,增加储物空间。岩板方桌,方便家人对坐交谈,浅灰餐椅,与柜体颜色一致,视觉过渡自然、流畅。


极简线型吊灯,分割视觉层次,令空间简练而有序。体积庞大的多层冰箱,直接内嵌,完美“隐形”。