项目名称 Project name: 透光的房子
项目地址 project address:四川 成都
项目类型 Project type: 私宅设计
项目面积 Project area: 120㎡
设计机构 Design agency: 集间设计
服务方式 service method: 全案设计
施工团队 Construction team: 集间设计施工团队
本案业主是通过老客户介绍找到我们。屋主是一对准备步入婚姻殿堂的90后环艺专业夫妻,对审美有一定要求;原户型为一套120平的四居室,夫妻二人常住,预留宝宝房间。屋主希望自己的家温馨、质感、不喜欢浅色调,同时改善原本房屋通风、采光不理想的现状。
The owner of this case found us through the introduction of old customers. The owner is a professional couple born in the 90s who are ready to enter the marriage palace. They have certain requirements for aesthetics; the original apartment type is a 120-square-meter four-bedroom house, where the couple live, and a baby room is reserved. The homeowner hopes that his home is warm, texture, and does not like light colors, and at the same time improve the current situation of the original house with unsatisfactory ventilation and lighting.
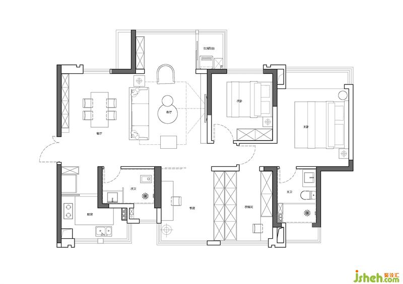
1.入户和餐厅在一起,致鞋柜与餐厅储物柜冲突。
2.厨房放置冰箱后操作台面不够用。
3.入户视觉狭小,利用率不高。厨房空间偏小且封闭。
4.客厅朝北楼层低采光通风不佳。
1.改变生活阳台位置,让厨房空间增大的同时还有合适的空间增添鞋柜。
2.书房墙体改为透明玻璃门,半开放书房形成,也很好地改善通风与采光。
3.书房和衣帽间做靠背储物柜,省去砌墙成本,释放空间的同时满足储物需求。
4.客厅阳台门拆除,阳台纳入客厅空间,客厅视觉更显大气。
5.生活阳台移入客厅阳台原本凹进去位置,完善清洁功能;加上长虹玻璃门的设计又拓宽了电视墙的视野。
客厅家具定位和选材上,注重舒适体验;沙发的宽软可以让你独处,让你自由释放。餐厅边柜开放式设计与白色百叶窗呼应,让餐厅变得更敞亮又舒心。随手可放一书一茶的不锈钢边几,让空间显得安静且质感。繁忙的午后,沏一杯咖啡,看一本书,内心欢愉又充盈。
In the positioning and selection of living room furniture, focus on comfortable experience; the softness of the sofa allows you to be alone and free to release. The open design of the dining room side cabinets echoes the white shutters, making the dining room brighter and more comfortable. A stainless steel side table with a book and a tea can be placed at hand to make the space appear quiet and textured. In a busy afternoon, make a cup of coffee and read a book, and my heart is full of joy and fullness.

灰色系列地砖地毯的选择,让整屋和谐静谧。
The choice of grey series floor tiles and carpets makes the whole house harmonious and quiet.

不锈钢摆件,不锈钢椅子茶几,不锈钢巴塞罗那椅脚;不锈钢材质深入整个深色基调中,显示着不张扬的质感。高端的巴塞罗拉椅独有气质,点缀空间又与整体空间融为一体;符合人体工程力学设计,无论是坐此工作与放松,都无疲乏感。
Stainless steel ornaments, stainless steel chair coffee table, stainless steel Barcelona chair legs; stainless steel material penetrates into the dark tone, showing an unassuming texture. The high-end Barcelola chair has a unique temperament, which embellishes the space and integrates with the overall space; it is designed in accordance with ergonomics, and there is no sense of fatigue whether it is sitting here and working or relaxing.


过道原本的厨房门、卫生间门、书房门我们用不同形式和材质的设计,让走廊看起来美观且整体感十足。原有厨房门去掉,让其空间开阔的同时采光变佳;卫生间门作为木墙一部分,隐形且神秘;书房门双开玻璃门,拉宽整个公共区域视觉,也极大地改善了采光让整个房屋变得明亮起来。隐形的卫生间门,具有极简的视觉效果,却又增添了几分惊喜。
The original kitchen door, bathroom door, and study door of the aisle are designed with different forms and materials to make the corridor look beautiful and full of overall feeling. The original kitchen door is removed to make the space open and the lighting is better; the bathroom door is part of the wooden wall, which is invisible and mysterious; the study door double-opening glass door widens the vision of the entire public area, and greatly improves the daylighting of the entire house. Become bright. The invisible bathroom door has a minimalist visual effect, but it adds a bit of surprise.

客厅无主灯的设计,增加了整个空间的亮度,彻底解决采光不佳的忧虑;符合极简要求,客厅更显大气利落。一览无遗的客餐厅阳台通透视觉。绸缎木整体电视墙提升客厅温度,与客厅无主灯设计结合,简洁且氛围感十足。
The design of the living room without the main light increases the brightness of the entire space and completely solves the worry of poor lighting; it meets the requirements of minimalism, and the living room is more elegant and neat. The panoramic view of the restaurant balcony is transparent. The satin wood integral TV wall raises the temperature of the living room, combined with the design of no main lamp in the living room, it is simple and full of atmosphere.