改造后的后院别有意趣,枯山水的禅意淡泊宁静。新造混凝土墙体及楼梯与原有山墙相衔接,赤裸冷冽。拾级而上,阳光透过圆孔,将光与影的虚实之美发挥到极致。
The transformedbackyard has uniqueinterest and charm; the Zen of Japanese rock garden creates anindifferent andtranquil atmosphere. The new concrete wall andstaircase linked up tothe original gable are naked and cold. As oneascends the stairs,sunlight comes inthrough round holes, which brings out the greatest beauty of light and shadow.
→后院,backyard ©苏圣亮

挚舍·南禅观水,源于历史,归于自然,让建筑、人与自然之间达到和谐共通的境界。
Originating fromhistory andreturning tonature,Sincere Hotel,Wuxi,creates a realm of harmony andmutual understanding betweenarchitecture, mankind and nature.
→原貌,the existing building
→施工中,under construction
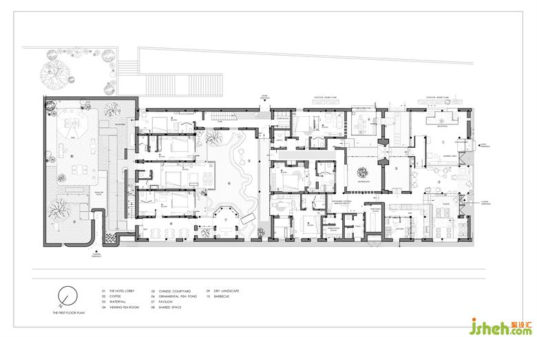
一层平面图,floor plan of first floor
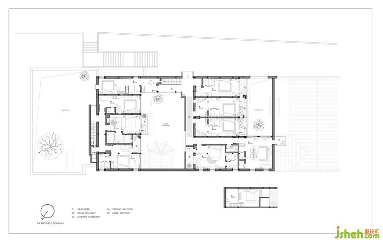
二层平面图,floor plan of second floor
正面立面图,elevation of frontfaçade
侧面立面图,elevation of sidefaçade
后院立面图,elevation ofbackyard façade
更多酒店设计请关注聚设汇装修平台: