【标 题】:靖庐
【地 区】:广州芳村花地湾·荣都花园
【户 型】:四房两厅
【面 积】:135平方米
【风 格】:日式
【关键词】:日式原木中性色
【前 言】:
有过落英缤纷时节,树下独眼;
有过一圈一圈转山,西藏流浪。
有过通宵达旦阅读,书中游荡;
有过焚香沏茶远眺,靖庐高卧。
时光过得很快,很多梦想,能到达的,没有到达的,都在慢慢实现。有些需要时间,有些需要财力,在达致的路上,也许很累,也许会忘了初衷,但是庆幸,还是在不老的时光,拥有了能让人休憩的房子,正好是她想要的禅意设计,大简清净。
希望都可以把轻狂日子里的梦想,不要忘记,远的近的,大的小的,能实现一点再一点。
而她,拥有了一个所在——
闲暇的时候,约上知己品茶喝酒,快意时哼一句:“网干酒醉洗脚上床,哪管门外有斜阳。”
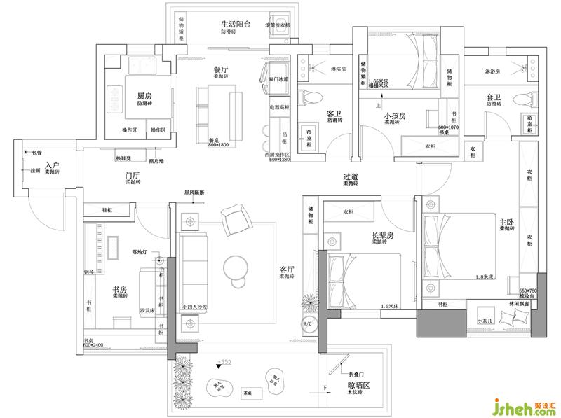
平面设计图
本案是四房两厅的格局,户型方正,案主希望在保留原有硬装的基础上,打造舒适安静温暖的日式风格的家,在设计过程中,我们更多的从家具及软装出发,整体装修设计以温润的原木色以及纯白色做主题色,冷静的灰色调作为辅助,加入纯粹的日式元素,编织,棉麻,极有寓意的日式绿植,让整体呈现更加的悠闲诗意,正如日式风格所强调的“一步一小景,一窗一世界”,让居住者充满了对生活的向往,对归家的向往,且能在喜欢的生活里尽看云卷云舒.
客餐厅




客餐厅做为整个家居空间最常用的互动空间,木质线条的日式格栅,很好的分割了两个空间的动线,让两者既区分又融合,沙发背景浓郁的日式风格的挂画结合成为了简洁空间的点睛之笔,纯净的白色透明玻璃花瓶,配上纯洁的雪柳,软化了原本木质家具带来的硬朗之感,赋予了这个空间温柔优雅的气质



