项目地址 / 上海·浦东新区
设计团队 / 花漾美作·空间设计
主创团队 / 李莹莹、严菁
户型面积 / 96㎡
设计时间 / 2019年3月
工程造价 / 48W
项目摄影 / THE MORE 视觉
最好的空间是这样的
我们居住其中
却感觉不到自然在哪里终了,艺术从哪里开始
设计将人的情绪延展进空间的形态
建立起与空间的情感
让人在空间获得最舒适、轻松自由的状态
从而找到生命的归属感......
-
本案属于上海的一户老公房改造,设施落后,对居住环境的改善是迫在眉睫的需求;我们的客户就职于世界五百强企业,对居住空间也同样有着自己的严格要求;在接触过程中,从内在流露出对细致生活的追求,经设计师的捕捉,交织在空间中让每一个细节都精准传达理想的生活状态......





一层结构图 | STR 01
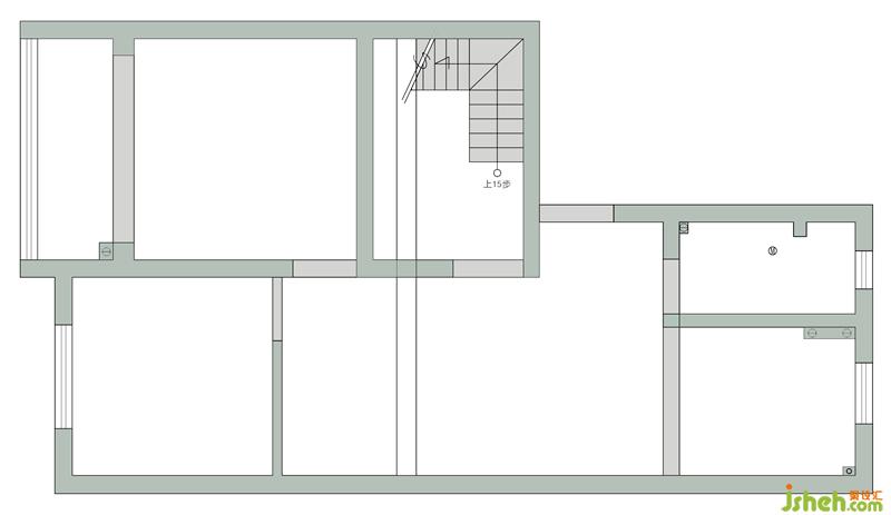
一层平面图 | PLA 01
二层结构图 | STR 02
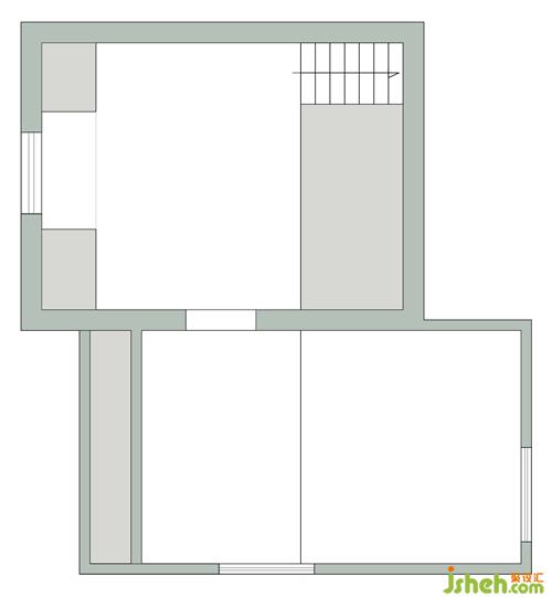
二层平面图 | PLA 02
居住需求 Living demand
1. 需要两个房间.
2. 空间尽量开阔.
3. 阁楼独立主卧.
空间优化 Space optimization
1. 打开楼梯间,主卧划入客厅,增加客厅使用面积.
2. 客房门距加宽,设计玻璃移门,扩大视野.
3. 厨房开放,模糊界限,增加各个空间的互动性.
4. 阁楼空间打通,利用空间原始结构,满足主卧使用需求.