欢迎光临聚设汇,装修找设计就上聚设汇!
咨询电话:15602987227
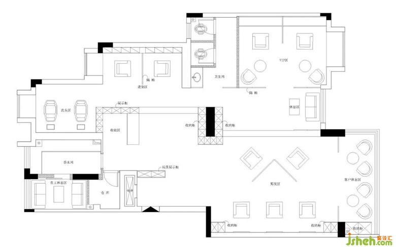
会说话的魔发空间

镜子,
魔发空间不可缺少的“道具”。
将镜子设计成与操作台融为一体,
与对面即分隔又充满互动性,
空间立马变得灵动又有趣味。
装修公司
装修公司
吧台区,
不仅仅是收银区域,
而且还是自助水果吧台。
在魔发旅行里,
可自由选择美味可口的点心。
私密空间留给洗发区,
将洗发区的位置设置在空间角落,
私密却又和整个空间有着互动联系。
安心又不被孤立。
装修公司
长沙德思奇家居有限公司
设计收费:300 元/平
擅长类型: 酒店,医院,电竞馆,家装
在线咨询