项目名称|彬妈糖水店装修
项目地点|中国•广州
设计面积| 48㎡
设计时间| 2021年8月
设计单位| TTD广州本至设计事务所
项目性质|室内设计•餐饮空间
设计总监|张海曼
陈设总监|唐颖
深化总监|冯仕明
方案设计| 何卓逊、祝知遇
摄影版权|再三感官视觉Allen
好食材,是日甜,和全世界一样,汉字的甜,也用于表达喜悦和幸福的感觉,糖水店装修因为人类的舌尖最先感受到的就是甜。作为彬妈的粉丝,设计师对于彬妈糖水的喜爱和了解,赋予更多的设计理解——这是一碗带着儿时记忆的广州糖水。
“味”字的定义和感知,起源于饮食,又超越饮食。除了舌之所品和鼻之所嗅,还包括成长的回忆及妈妈的厨艺。如何在糖水浸润食客的味蕾之前,糖水店装修唤醒食客关于儿时糖水的味道,是设计师思考的出发点。
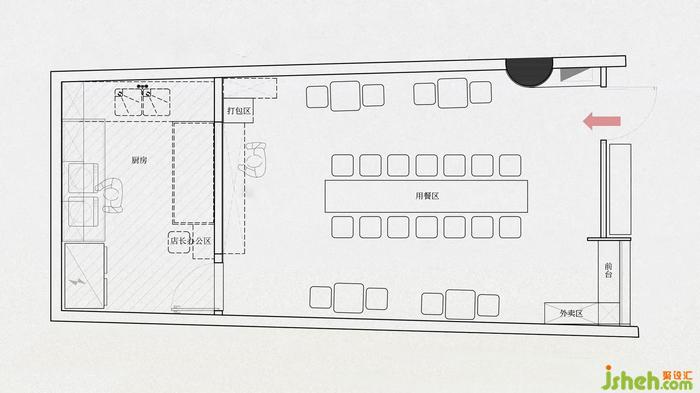
项目位于珠江新城CBD繁华商城,长年人流量巨大,项背相望,设计师根据业主的诉求和彬妈糖水的品牌定位进行升级设计,前台的位置包含设计师在疫情之下的思考,充分顾及客人下单和打包的便利。



候客区的设计,既不占用公共通道,也为往来的行人和排队的客人提供一个驻足小歇的座位。桌子的摆放,则可以解放消费者提着众多购物袋的双手。

