

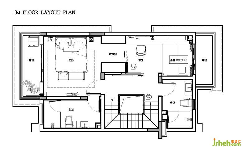
三层更改原活动室的设定,以整层奢适的尺度,容纳主人在此间的所有生活需求。
基于现代家庭场景,体贴地设置了双卫浴的空间,让因工作而产生“时差”的男女主人,晚归冲凉、早起梳妆,皆互不干扰。

设计通过色彩的变化营造私密感,浓烈的红色在此再次被强调,肌理感被体现在边柜的黑色木质纹理、床品乃至挂画上手工镶缀的羽毛。

开放式的衣帽间,链接工作台与临窗的茶室,也链接起关于生活的切片:睡前的阅读、交谈,一起临窗看雨的静默,又或者在失眠的夜里斜靠在沙发上数远处的灯光明明灭灭,我们用想象力编织了一幅又一幅生活的片面,然后将故事抽走,把带着故事的家具留下。