项目名称:惠州保利悠山美地花园二期别墅
设计总监:彭征
主案设计:练远朝、招婉莹
设计团队:曾晋家、梁景山、陈敏怡、朱国光
设计单位:广州共生形态工程设计有限公司
项目业主:诺楠紫乐轩置业(惠州)有限公司
业主团队:杨冰、陈亚宇、商玉奇
项目地点:广东惠州
设计面积:320M²
主要材料:高雅灰大理石、墙布、夹丝玻璃、砂面不锈钢、木饰面、烤漆板
“家”的设计迷人之处,是因为它无限地还原人的血肉,带有故事和情感。 我们常常很难回答关于风格的问题。比起定义一个居室的风格,我们更愿意去描述,住在那里面的,是一个怎样的人,有着怎样的爱好,经历,关系。与其“设计”一个家,不如呈现一个家,构建一种生活场景。这个过程会很像完成一部小说,一开始,你塑造他的面目、轮廓,组织他的爱好,揣摩他说话的方式,独处的样子,就这么一点点勾勒出他的个性,日常,然后用每一本书,每一部电影,一首恰到好处的音乐,和那些带着偏见的艺术品,去丰满他的血肉脉搏。
用这些带着他的精神的物件,去构成一个个生活的片面。最后的最后,当你赋予了空间足够鲜活的情绪、好恶和情感之后,它会自己说出故事来。 ——这些原始素材的采纳过程,我们称之为生活的加法,之后,我们要有所取舍,锤炼每一个细节,最终提炼出最适合的话语方式,来面对个性化和群体共鸣之间的平衡——也就是设计的减法。
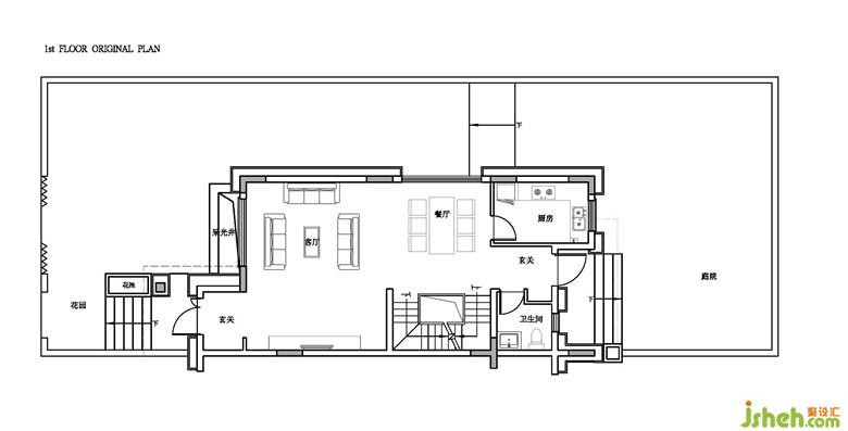
项目为四层别墅,一层为起居空间,三面庭院环绕,是建筑最珍贵的资源,二、三层是家人居住的空间,地下一层则规划为容纳社交和性格爱好的空间,基于对整体空间的理解和人群生活的洞察,我们通过空间资源的改动,加载功能和生活方式的可能性,再从生活方式出发,细腻功能体验的舒适度和合理性,最后以带有精神的器物逐步打磨,构建出一个人、一个家的面貌与生活场景。
别墅装修
在一层客餐厅,基于双入口设定,我们改变客厅原对称性布局,重新排布,优化动线,用主沙发和大茶几来创造稳定面,产生主次关系和空间节奏。打开封闭式的厨房,与客厅隔着餐桌形成对望,家人与朋友在烹饪、用餐时有了更多的互动和趣味。
别墅装修

浓烈的红以不同的材质导入,贯穿于客餐厅的不同块面,不同灰度的黑与白,用肌理感强烈的棉麻、绒布材质间序其中,金属的光泽以线条的形式介入。
