欢迎光临聚设汇,装修找设计就上聚设汇!
   咨询电话:15602987227
登录    注册
聚设汇
首页 > 家装 > 杭州家居设计:独白2

杭州家居设计:独白2

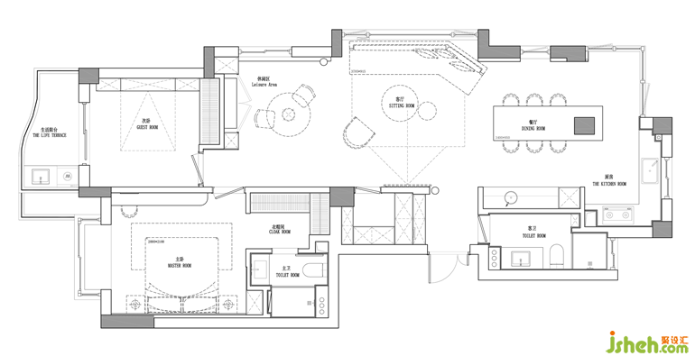
北阳台与餐厅、厨房巧妙合并,让原本局促的三个空间成为一个整体,空间互通互用,杭州家居设计让空间更加的宽敞。同时将原本老旧零碎的门窗全部更换成落地窗,更好的将户外的风景和光引入的室内。

木饰面、棉质床品、艺术涂料等贴近自然的材质与色彩,在空间中营造温润素净的面貌。

杭州家居设计粗犷的微水泥墙面,硬朗的材料与色彩,纱帘在风中徐徐飘动,朴实雅致的氛围下尤显宁静安然,仿佛静止了时光。

更多杭州家居设计请关注聚设汇装修平台:

菲拉设计

设计收费:面议 元/平             

擅长类型: 家居、豪宅、别墅

在线咨询

扫描二维码关注我们的微信

深圳市聚设汇文化传媒有限公司
主编热线:15602987227
总部:深圳市罗湖区梨园路128号宝能汽车大楼416单元
佛山、东莞、成都、重庆、福州、厦门、南昌、武汉、
杭州、苏州、温州、郑州、长春、沈阳、贵阳、柳州、
哈尔滨、九江等城市设立办事处
© 2017-2021 Jsheh.com 版权所有 粤ICP备17079093号
展开
回到顶部