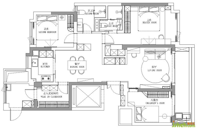
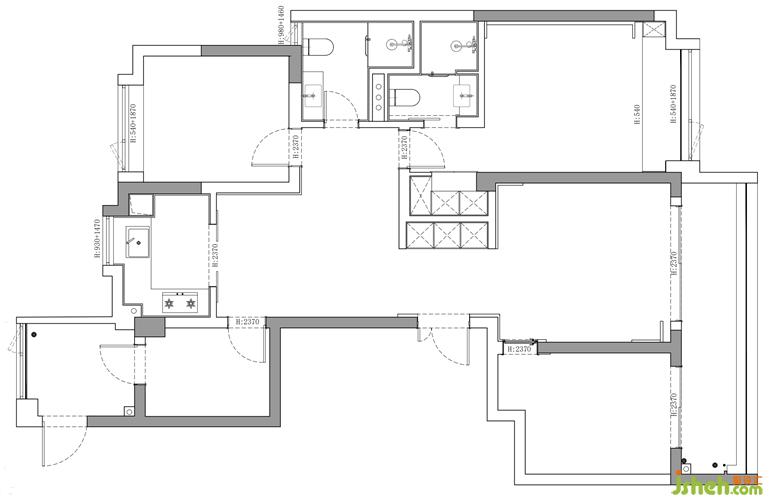
当美褪下时代的外壳,留下的存在形式便是它最大的意义。了解人物居住状态,储物功能强化为要则,原玄关虽具储物之能却归于格局形式大于实用,杭州装修设计拆改重设优化内部收纳,渲染玄关意境的日式藤编开启风格的陈词。


杭州装修设计存在于立世与感受之间,诠释着一种与周遭不断发展、共融的生活现状,受当下影响的同时也在反映时代;在疫情的背景之下,家居生活方式随之变动,客厅载有小朋友体育网课功能的去茶几设计,以小体量沙发留有的家长工作空间。一体多职。以彼之色,绘筑彼声,立足于过去的未来,沿用房门原木色调展开一场互动,合拍、有机,牵曳一局和谐传承的平衡力。




更多杭州装修设计请关注聚设汇装修平台: