04尾声:润物无声 意犹未尽

包间被碳烤木铺展,质朴的木作以返璞归真的面貌,促成丰富的内涵。墙体下方用细节成就惊喜,安插一块玻璃,让包间与开放就餐区无形中增强联系,也提升了室内的呼吸性与氛围感。

高低交错的陈设、明暗交叠的色调,在灵动的节奏下,克制却又不失重点。铁板烧餐厅设计鉴于包间的面宽情况及使用需求,餐台圆弧采用侧边处理,刚柔兼济,彰显俊朗又不失细腻特质。这也是团聚的象征,亦被赋予私密性与安全感。
转折状的金属层板也是对“屏”的形体演绎,铁板烧餐厅设计将造型美学和谐地融入切实的功能中,以期实现展陈与妆点的完美结合。
卫生间遵循着材料、比例与秩序,利落从简。铁板烧餐厅设计粗粝的肌理与光滑的表面,配合光线映衬,强化其质感,也进一步凸显层次。
铁板烧餐厅设计师方磊补充道:“我们希望在南京龍·铁板烧餐厅,以创意设计赋能商业。强调就餐环境为载体,美食需求为主体,配合空间本身、灯光调试、餐台设备、座椅及餐具选配,甚至软装陈设等,温暖慰藉宾客的身心。最终透过这个场域,诠释出对内在的探索,润物无声。”
写在最后
铁板烧餐厅设计本身定位为高端预约制,基于场地、功能与客群分析,我们拒绝过多的元素堆砌,放弃刻意的故事营造,试图传达一种沉浸式的餐饮氛围。透过暗黑色调的铺陈,加强对宾客心理的引导,在不断的深入中产生回响,无形中凝聚出一种力量,可以打动自己,打动宾客,打动观者。
铁板烧制作全过程也能尽收眼底,一边欣赏大厨展示厨技,一边酣畅品尝美食,邂逅一场视觉与味觉的饕餮盛宴。我们着重考虑宾客的需求、大厨的操作、大厨和宾客的互动,以及服务人员的便捷响应等多者之间的关系与距离感拿捏。密切关注不同行为主体的交互过程,以及蕴藏在其中的人文、心理和服务状态,以期带来更高质量的体验感受。——方磊
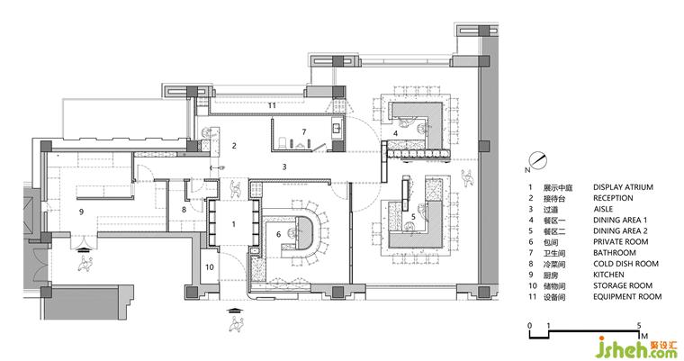
平面图
更多铁板烧餐厅设计请关注聚设汇装修平台: