地下层内庭院自成一方静谧天地,素雅干练的用材与水景园林交相辉映,涤荡开无尽的人文雅趣。在艺术的构造下,建筑本身与周围环境和谐交融,恍如遁回桃花源,忘却世间尘与烦。互动联通中,可谓室内户外,各有风韵。

地下层剖面图
浩瀚无垠的大海包容着人们对于理想生活的无限想象,珠海仁恒滨海半岛上叠样板间接轨国际视角,广纳海滨风情,触发情感与场域的连接,以内外空间的融合相映,尽情抒写山海叠墅的雅致精萃。
1F平面图
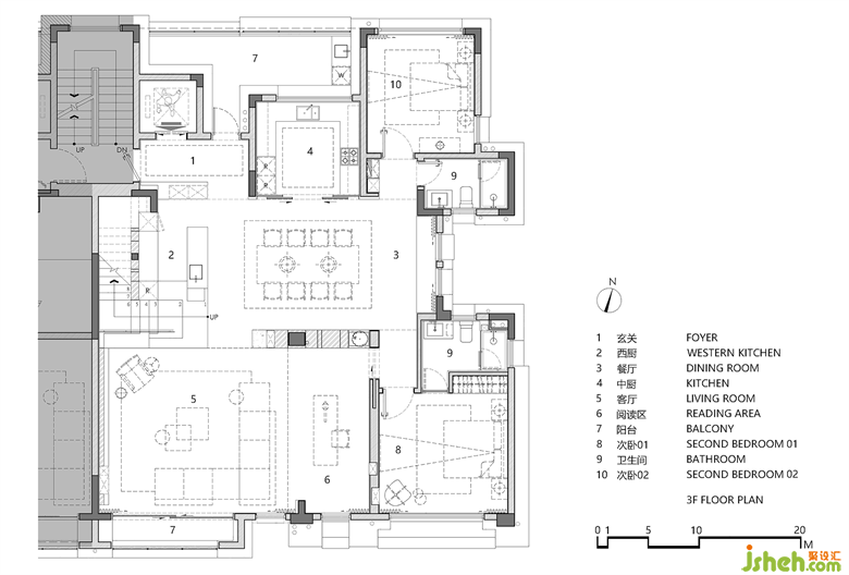
3F平面图
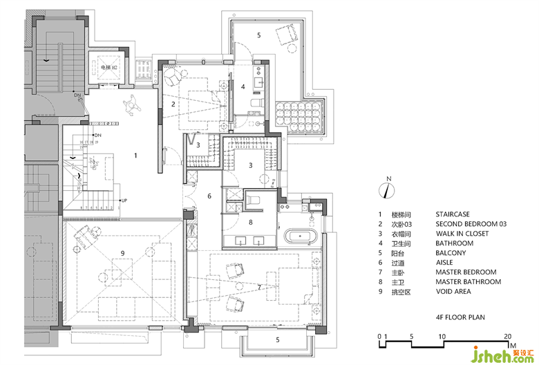
4F平面图
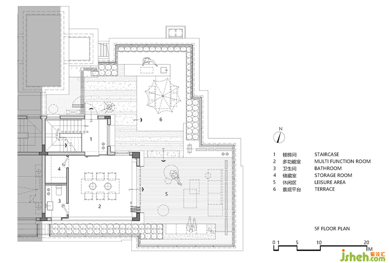
5F平面图
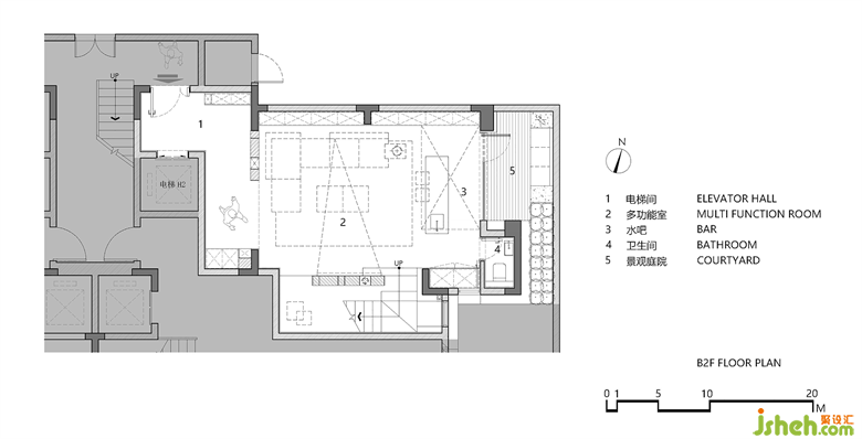
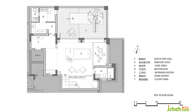
B1F平面图
B2F平面图
更多珠海样板房设计请关注聚设汇装修平台: