同一材料以其细微的碰撞便能有着别具一格的表现。珠海样板房设计木作与石材虽为常规组合,通过巧妙的节奏,不同的肌理质感,以及恰当的细节点缀,演绎出大道至简的纯粹格调。


得益于对透视效果的精准把控,珠海样板房设计以视觉仪式感为切入口,铺展开欢聚一堂的用餐画卷。践行秩序和克制平衡之道,并随着渐进式的交互与深入,环顾四周总能邂逅多彩景致。


运用解构技法、体块穿插,吧台和楼梯踏步自成一体。灵动交错的姿态,衍生出更丰富的置物功能,也让此处轻盈悬浮,步履生风。

木盒子概念基于原始建筑形态包裹而出,叠级错位向上,既有效打破呆板,也是造景思维的进一步实践。平台之上,以留白不设限的理念,匹配未来更多可能性。

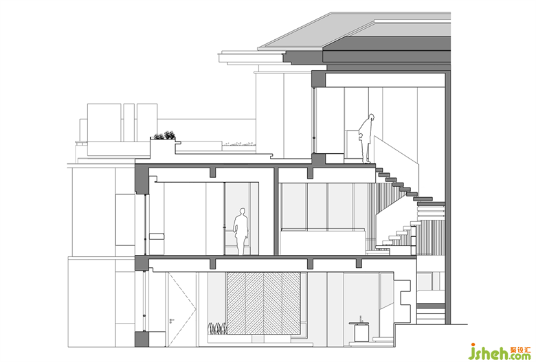
地上层剖面图