欢迎光临聚设汇,装修找设计就上聚设汇!
   咨询电话:15602987227
登录    注册
聚设汇
首页 > 家装 > 万科水晶城(佛山)住宅设计

万科水晶城(佛山)住宅设计

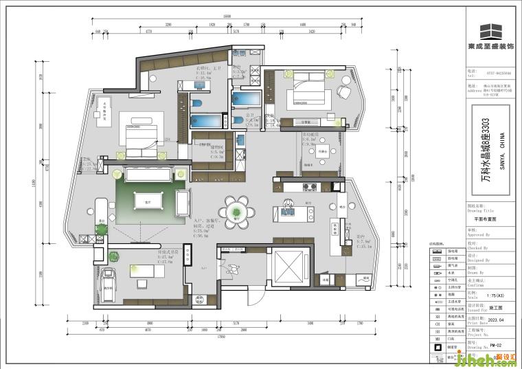
住宅设计空间改造解析:

入户玄关:打造明亮开阔的入户体验

厨房:敞开式厨房,视线无遮挡,在做饭的同时更适合于家人互动

客餐厅:空间瞬间翻倍,采光爆棚,视野更开阔

阳台:并入厨房后动线流畅,使用更便捷

卧室:功能分区,合理利用空间,提升舒服度和私密性

更多住宅设计请关注聚设汇装修平台:

南海东成至盛装饰高端设计部 设计总监

设计收费:面议 元/平             

擅长类型: 家装、豪宅、别墅

在线咨询

扫描二维码关注我们的微信

深圳市聚设汇文化传媒有限公司
主编热线:15602987227
总部:深圳市罗湖区梨园路128号宝能汽车大楼416单元
佛山、东莞、成都、重庆、福州、厦门、南昌、武汉、
杭州、苏州、温州、郑州、长春、沈阳、贵阳、柳州、
哈尔滨、九江等城市设立办事处
© 2017-2021 Jsheh.com 版权所有 粤ICP备17079093号
展开
回到顶部