对比传统的零售空间,党明希望通过自由的动线、交互的形式,给予消费者更近距离的开放体验。展示屏通过下方端口达到交互效果,上海店铺装修设计线上的鞋履试穿效果展示,用高科技简化了选择的繁琐,增添互动趣味。


金属与绿植在室内自由地反射光线,大小不一的齿轮跳跃在空中,仿若琴弦上碎裂的音符,以柔和的方式展现科技与工业的氛围。
波普艺术大师安迪·沃霍尔曾说,艺术商业是商业的下一阶段。从悦人到悦己,消费到体验,艺术成为了商业空间中的精神食粮,让消费者可以欣赏共鸣。如梦中所见,让观者拥有更多想像空间。
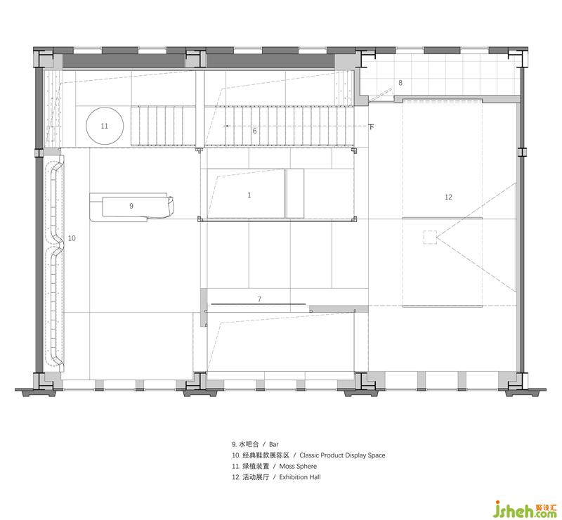
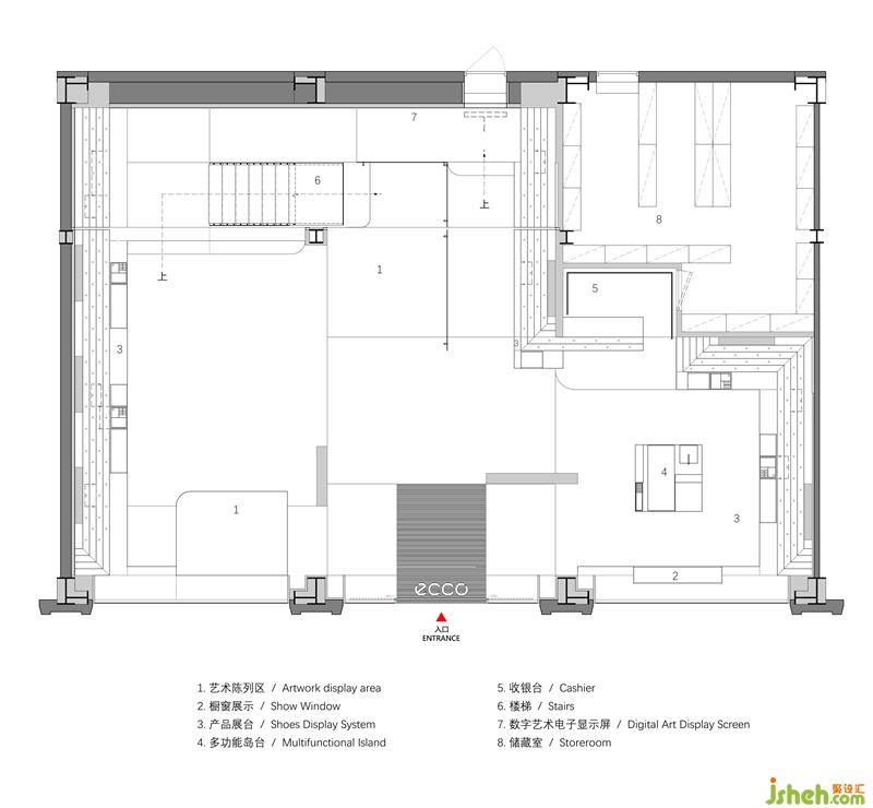
FLOOR PLAN
平面图
△1F 平面图
△2F 平面图
更多上海店铺装修设计请关注聚设汇装修平台: