▼卧室 Bedroom


同样的简约设计手法和语言贯穿到卧室空间。男女主人喜欢睡前躺在床上看电影,这是他们最为放松和幸福的时刻,投影便成了他们最好的伙伴北京装修设计。
The same minimalist design techniques and language are used in the bedroom space. The hostess and hostess like to watch movies in bed before going to bed. This is their most relaxed and happy moment, and the projection becomes their best companion.
生活从来都不是一蹴而就,空间也有生命,当柔软的光线散满房间,刺破空间的光与影充盈了叙事的空白,把夕阳揽入怀中,和红酒一起下肚。
Life is never achieved overnight, and space also has life. When the soft light fills the room, the light and shadow that pierce the space fill the narrative blank, embracing the setting sun and drinking red wine.
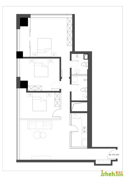
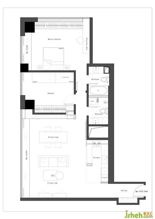
▼平面图 Plan
原始平面图
平面布置图
更多北京装修设计请关注聚设汇装修平台: