



晨有清逸,暮有余闲。装修设计将一室素雅留给静谧的心无杂物,是内心的自我舒展,只需有细碎的事物,如一捧绿叶伏窗,如太阳碎碎的光芒洒落其上。
Morning has a clear, twilight has leisure. Leaving a room simple and elegant to the quiet heart without sundry, is the inner self stretch, only have small things, such as a handful of green leaf Fu window, such as the sun's broken light sprinkling on its.
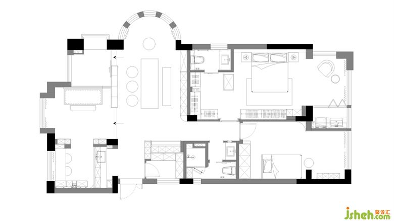
平面布置图 Floor plan

更多装修设计请关注: