欢迎光临聚设汇,装修找设计就上聚设汇!
   咨询电话:15602987227
登录    注册
聚设汇
首页 > 家装 > 辰佑设计|慢酌生活本味,为家筑精神的“永续”之境

辰佑设计|慢酌生活本味,为家筑精神的“永续”之境

光从来都是最恰当而温和的叙事方式,感受自然与空间之间的对话呼应,辰佑设计从简洁纯粹中塑造出空间情绪,步履渐趋闲适。

造一隅童话境

而知觉、想象、情感自由生长

陷落于巧克力小甜饼的梦里,抹茶色的天空、永不落幕的彩虹和发光的云朵,辰佑设计在这个小小梦工厂,怀拥最童真意趣的年岁。

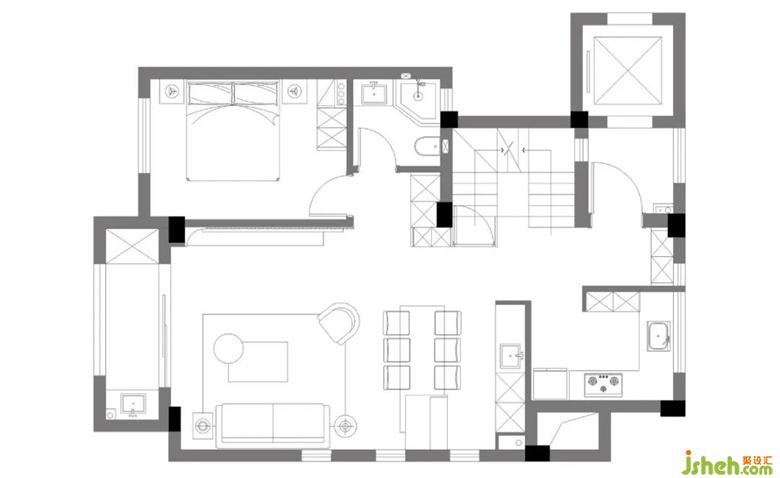
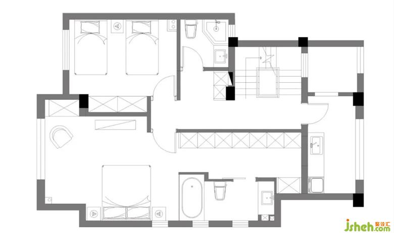
平面布置图 Floor plan

更多辰佑设计请关注:

辰佑设计

设计收费:面议 元/平             

擅长类型: 别墅,排屋,高档公寓及商用空间

在线咨询

扫描二维码关注我们的微信

深圳市聚设汇文化传媒有限公司
主编热线:15602987227
总部:深圳市罗湖区梨园路128号宝能汽车大楼416单元
佛山、东莞、成都、重庆、福州、厦门、南昌、武汉、
杭州、苏州、温州、郑州、长春、沈阳、贵阳、柳州、
哈尔滨、九江等城市设立办事处
© 2017-2021 Jsheh.com 版权所有 粤ICP备17079093号
展开
回到顶部