欢迎光临聚设汇,装修找设计就上聚设汇!
   咨询电话:15602987227
登录    注册
聚设汇
首页 > 家装 > 质·璞

质·璞

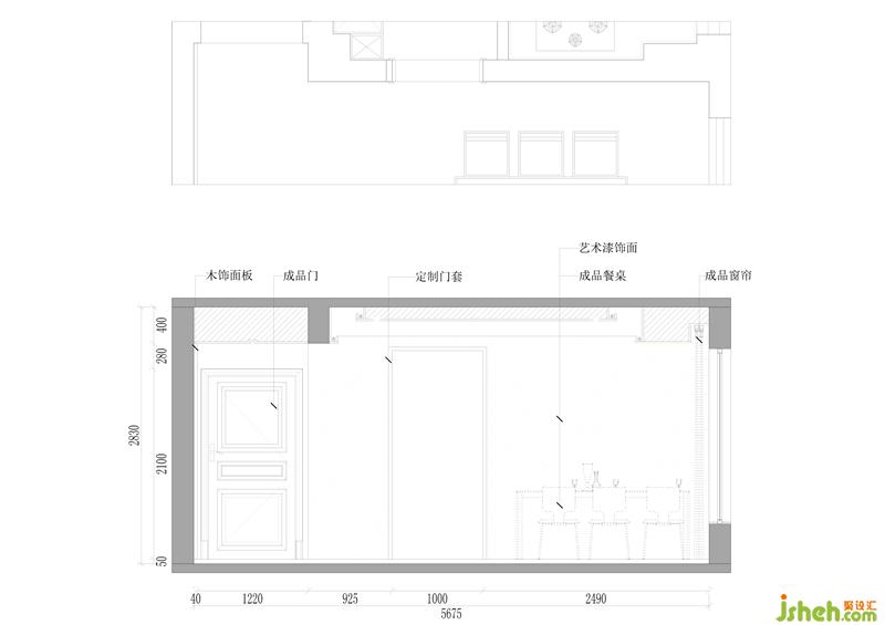
在空间的展开与连接之间,余裕轻盈地串连增强空间互动性,轻奢感带来一股缓缓暖流直入内心深处黑框灰玻的厨房门,划分隔阂空间,有着整洁干净的状态。延用同款瓷砖及白色搭配设计,视觉延伸感更强,使厨房显得更加通透明亮。为了合理规划了整个空间布局达到更理想的居家状态储物功能的设计也为整个布置提供了大量置物归纳点斑斓的色彩交汇在这个童趣的空间里在细节上点缀沉静的蓝色,调剂空间视觉。现代装修设计

现代装修设计

福建国广一叶建筑装饰设计工程有限公司九系副总设计师

设计收费:300 元/平             

擅长类型: 住宅

在线咨询

扫描二维码关注我们的微信

深圳市聚设汇文化传媒有限公司
主编热线:15602987227
总部:深圳市罗湖区梨园路128号宝能汽车大楼416单元
佛山、东莞、成都、重庆、福州、厦门、南昌、武汉、
杭州、苏州、温州、郑州、长春、沈阳、贵阳、柳州、
哈尔滨、九江等城市设立办事处
© 2017-2021 Jsheh.com 版权所有 粤ICP备17079093号
展开
回到顶部