设计名称:健康花城
设计师:辰沙设计
摄影:蓝灰
施工:老王
房子面积:90㎡
设计风格:北欧木基风
常住人口:业主,父母偶尔过来
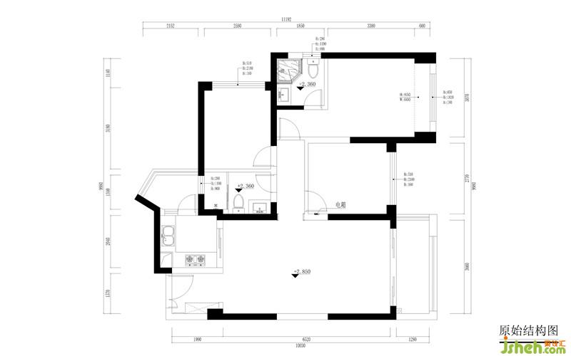
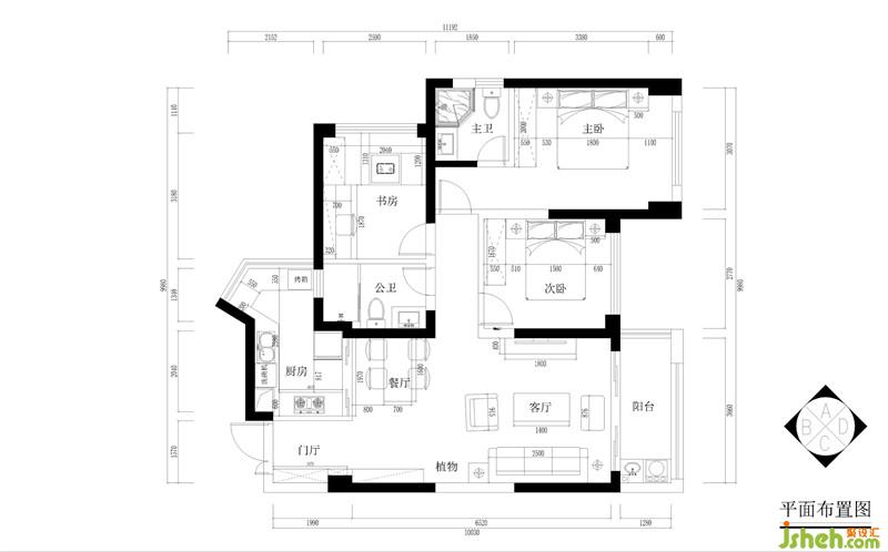
这个是一个精装房,空间格局没有改动,只是做了软装,偏冷的灰调和原木色的空间,会让业主觉得很放松和舒适,所以在讨论之后,我们决定做一个冷色和木色结合的简约北欧风格。在饰品的选配上,也是精致又实用。室内设计师
灵魂总是渴望自由。远方有时候在近处,有时在他乡。旅行的意义,是在出走的过程中,探寻到心灵的栖所,距离会让我们获得喘息的时刻,让我们有机会在时光的缝隙里遇见自己。那不旅行的时候呢?一个放松舒适的家便是灵魂安放的地方。
张先生是一个追求完美的处女座,喜爱旅行和摄影。由于本案是精装房,在与张先生多次沟通后,我们把重心放在软装上,打造一个冷色和木色结合的简约、舒适、放松的北欧风格之家,而在空间格局上只做轻微改动。感谢缘分让我们相遇。


室内设计师




