欢迎光临聚设汇,装修找设计就上聚设汇!
咨询电话:15602987227
首页
>
家装
> 洛阳装修设计:金牛座/The Taurus
洛阳装修设计:金牛座/The Taurus
The Taurus / 金牛座
我一直不认为理想的生活在别处
如果可以的话我并不想赚很多钱
我想生活是否美好
只取决于今天 我是否拥有了
一刻真正属于自己的 日常
可以居住在四季分明的城市里
可以生活在属于自己的天地中
能够充分感知人间的烟火气
也不会错过我和身边人的每一次感动
喝一杯沸腾了又冷却了的白水
翻几页读过了又想读的书
即便是一个无所事事的下午
我也不会觉得无聊
时间的快慢在我的屋子里
都不重要了
在这里我找到了自己的模样
这 是一个 我最喜爱的自己



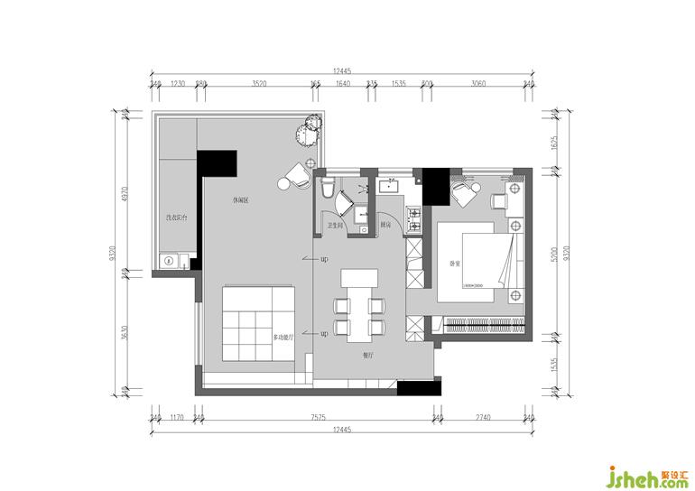
洛阳装修设计


更多洛阳装修设计请关注
忱意空间设计研究室
设计收费:300 元/平
擅长类型: 家居
在线咨询