欢迎光临聚设汇,装修找设计就上聚设汇!
   咨询电话:15602987227
登录    注册
聚设汇
首页 > 商业 > 苏州80苏小馆

苏州80苏小馆

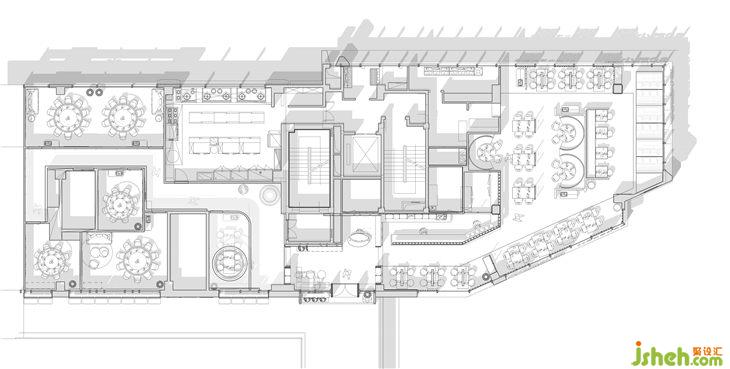
原图建筑中间的核心筒处在整个餐厅最核心的中间位置。很尴尬的把空间均分为二。布局上利用厨房和吧台吧畸形的角落空间利用起来。化零为整。以吧台为纽带,把厨房和就餐区的功能分开,把服务联系在一起。

CHAO苏州巢羽设计事务所

设计收费:面议 元/平             

擅长类型: 餐饮、民宿、店铺

在线咨询

扫描二维码关注我们的微信

深圳市聚设汇文化传媒有限公司
主编热线:15602987227
总部:深圳市罗湖区梨园路128号宝能汽车大楼416单元
佛山、东莞、成都、重庆、福州、厦门、南昌、武汉、
杭州、苏州、温州、郑州、长春、沈阳、贵阳、柳州、
哈尔滨、九江等城市设立办事处
© 2017-2021 Jsheh.com 版权所有 粤ICP备17079093号
展开
回到顶部