主案设计 / 陈 婷 常海峰
Design Director / Chen ting Chang hai feng
项目类型 / 私宅
Type Project / Private Residence
项目地址 / 广东 深圳
Project Address / Shenzhen Guangdong
项目面积 / 96㎡
Area / 96 ㎡
一个愉悦的空间、一种舒适的生活、一方独享的天地、
室内设计师都在这里寻求最合适的表达。
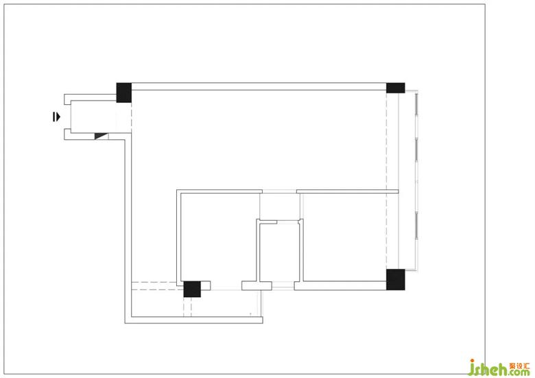
原始结构图
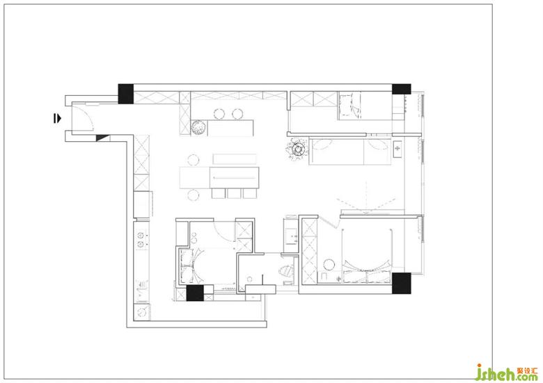
改造方案图
项目始于21年3月份,初次见面,室内设计师年轻时尚的女业主与我们相约现场畅聊,聊了许多关于他们生活习惯的点滴,对新房设计的畅想和需求。其中最重要的是需多加出一间卧室,亦要保证每个房间都需自然通风采光,还需一个阅读区域,相当于让原本2间卧室增加成4个。于是乎、设计改造就开始了......室内设计师
— 入户厅


玄关之后便是开阔的客餐厅空间。室内设计师玄关更多的是过度,平衡和串联空间。
Behind the porch is the open dining room. The porch is more about excess, balance and tandem space.
— 客餐厅

