项目地址:百花园
房屋面积:103㎡
装修风格:清新北欧
摄影:蓝灰
本案设计:标点团队设计
设计说明:本套案例是由女主人吴姐为她的双胞胎女儿准备的学位房。此次装修以实用居住为主功能,兼具美貌与收纳为一体,根据女主人的喜好,色彩上延续北欧风格的清新色调,通过不同的色彩表达分割不同空间。每个空间的共性是以亮色为主,更好地为孩子打造一个轻快有趣,充满欢乐色彩的成长空间。如何最大化空间利用率,并且不失美感和舒适,把收纳实用这一功能完美呈现出来,是本案设计的最大挑战和宗旨。
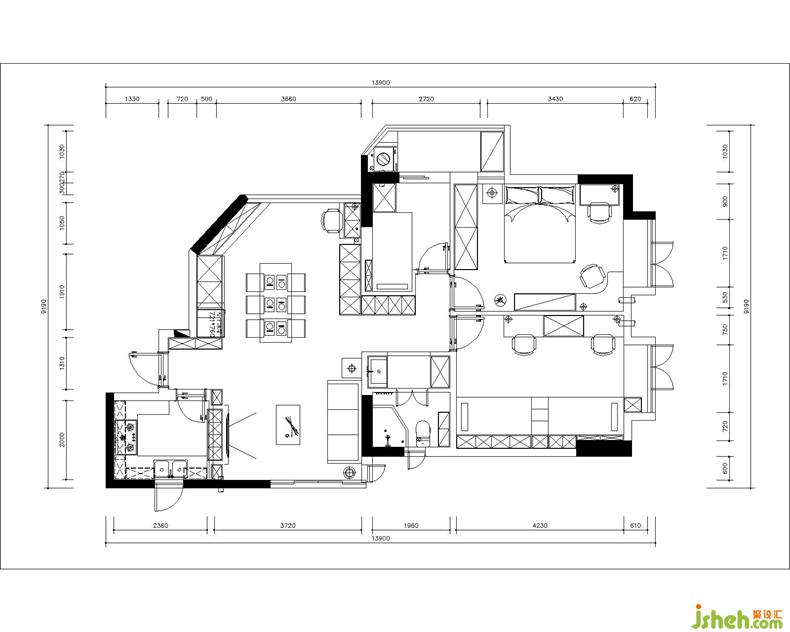
户型解析:
①户型优点:户型方正
②户型缺点:客餐厅通风和采光较差。空间内部规划不合理,存在较多的过道浪费空间
③空间改善:把餐厅阳台封窗,餐厅扩展出去,改善了客餐厅的通风和采光,同时增加了餐厅的活动空间。把保姆房的部分空间给到主卧,用来增加主卧的储物功能,同时也把过道部分空间分给保姆房,保证房间的基本居住功能。

Living Room 客厅
毕加索蓝的地毯和如水雾般氤氲的蓝橙色抽象画作,不仅徒添了几分艺术气息,还使视觉上的温度达到平衡状态,赋予空间独有的女性温柔气质。室内设计师

纯白的百叶窗帘巧妙地过滤了自然光线,使空间更加通透明亮。工艺感十足的吊灯,温馨的纯色布艺沙发,小小的客厅,幸福的温度脉脉而生。

Dining Room 餐厅
室内设计师把阳台封窗做成书桌,扩延到餐厅,使餐厅整体面积变大。玻蓝餐灯与银灰餐椅相映,在米白色柜橱的背景下给人的感觉是明亮又有色彩感的。
