设计机构:广州本家设计
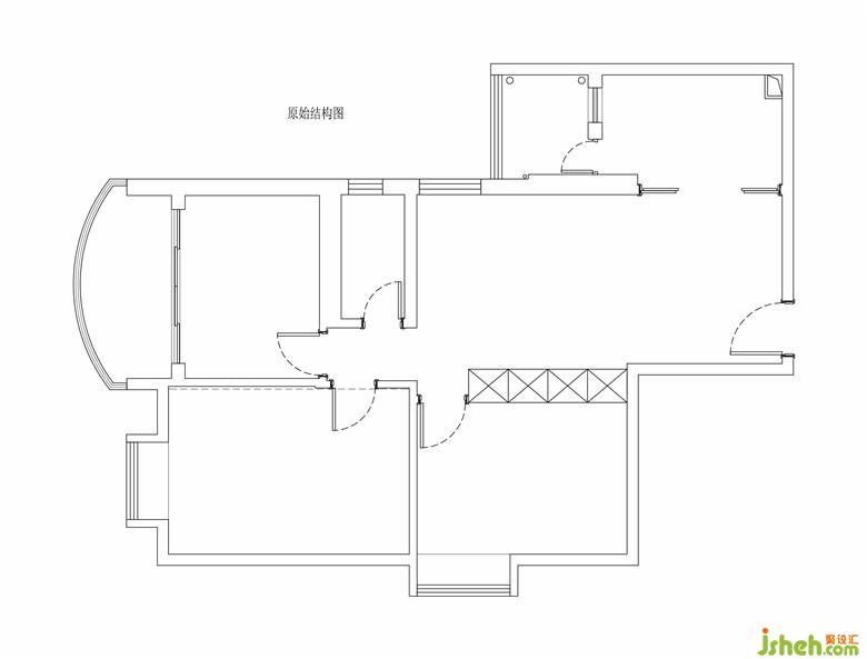
户型:三房一厅一卫
面积:90平方
楼层:电梯楼10楼
朝向:南北对流
项目周期:3个月
设计师:陈先生,您对这个房子有什么想法吗?
陈先生:生活可以是一杯清茶,生活可以是一曲幽歌,生活也可以是一张白纸,白样生活,白样人生,体验生活中的炫丽色彩,品味生活的点点滴滴,大事小事,生活可以简简单单,平平淡淡,也可以亮丽多彩,而快乐就是生活中的调味品,增加剂。但生活却不能将就…….
翻译:不需要花哨的造型,简单实用就好。需要满足生活多种场景的,营造出生活的乐趣,且要合理利用有限空间。色彩搭配以素色为主,点缀跳跃的色彩。
生活需要一点仪式感,从踏进家门,放下钥匙,脱下鞋子,挂好提包那一刻起。一面镜子,给美好生活的开始一次最后的确认。谁说美好生活就不能有情调?
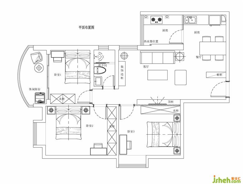
客厅,一个房子的灵魂,它承载着生活乐趣。一场球赛,一顿晚餐……
半开放式的厨房,打破了原有死板的功能分区,让客厅,厨房,餐厅串通,增强了三个功能空间生活场景的互动,生活动线的巧妙过度连接,提高空间的利用率同时,让房子更加通透。

室内设计师
寝室没有多余的装饰,每当步入,就好像提醒着,应该把生活的中繁杂事物抛开,给自己一点喘息的空间,才能发现生活的美好。
室内设计师
室内设计师
阳台,享受阳光的地方,闲暇时光,一杯清茶,一缕阳光,给多肉洒洒水,打声招呼
有限的空间,无限的场景。简单才是最高的要求。
室内设计师
室内设计师