项目丨Location:保利山庄江天悦家居设计
建筑面积丨Square meters:120m²
户型丨House type:四室两厅
风格丨style:现代
硬装设计丨Structure:DE设计事务所-钟勇
软装设计丨Decoration:D.ART软装服务机构-黄楠
施工团队丨Project:DE工程中心
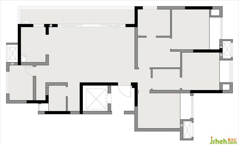
本案是一套建筑面积为120m²的四居室,业主是幸福的一家三口;他们对房屋设计的要求只有一个:合理的把房屋格局规划好,喜欢现代风格。
空间改造思路
1、“我拆,为了增加厨房面积”
整体格局紧凑,厨房面积较小;拆除厨房墙体,根据业主要求做成开放式厨房;增设岛台,弥补操作台的不足。
2、“我再拆,为了改造厨房”
拆除原书房墙体,改为餐厅空间,使得餐厨一体化。
3、“我不拆了,准备搞阳台”
将原有的景观阳台一分为二,一部分包进客厅,增加采光和通透感,让原本局促的客厅面积整体变大;一部分设置成洗衣区域和隐形家政区,生活功能齐全。
4、“我给封起来,为了把功能增加”
从客厅进入主卧,将原先主卧的门封起来;利用主卧过道空间,给业主增加了一个衣帽间,这样不但扩大了主卧活动面积,而且提高了空间使用功能。
删繁就简,让家自然而简单


“以留白诠释生活剧场”
客厅采用无主灯照明,见光不见灯的设计是对于人最舒适的顾及;黑白的主色,是干净纯粹的色调;没有过多的装饰,只是将木色和灰色穿插在空间中。
闲暇之时,靠在软体沙发上;随意团坐,只是放空发呆,也是一种浮生偷闲的舒畅;一边是宽敞包容的客厅,一边是通透明亮的餐厅,既自由开放又互相关联。
看到平淡中的精彩
阳光也会多一点偏爱


客厅与次卫生间的连接采用隐形门,采用木饰面的设计;在不影响空间的整体布置前提上,将门+木饰面组合,设计成隐形门,让空间显得更加舒适自然。