设计公司:7KK设计
户型:二室
使用面积:45平米
房屋位置:上海 浦东新区
装修花费:16万元
说在前面
这套房子坐落在上海浦东绿地康桥新苑的一套小复式阁楼,屋主是律师行业的,比较细致,因为预算有限,在整体设计和装修上设计师也是根据屋主喜欢的风格预算上也是把控的比较精细。接下来这个小复式阁楼在改造上有很多的亮点大家可以欣赏。
空间展示
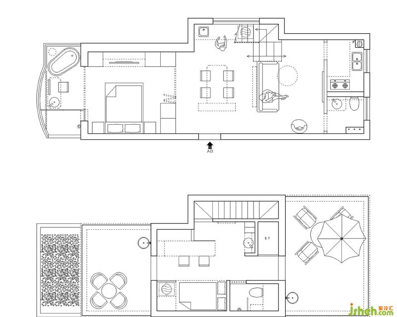
- 户型图 -
上海装修设计原始户型图 一楼45平,原始楼梯在进门右侧,进去之后比较压抑,客厅空间也不够完整,餐厅也没有好的位置放置,如果把玄关+楼梯+客厅+餐厅在现有房型空间结构上去设计很尴尬、拥簇。 阁楼本身就十几个平方有个斜顶,正常使用的空间很有限。
改造后平面布局图,户型改造上有很多亮点,动线布局合理,空间利用率很高。
1、楼梯位置的设计有效利用空间,楼梯靠窗设置,下面空间做西餐吧台和收纳功能。同时利用楼梯客厅做高台阶作为客餐厅功能分区。
2、卫生间比较小,利用阳台空间作为淋浴功能满足业主的泡澡淋浴的需求。
3、利用有限的阁楼空间设计出多功能房间,书房+卧室+淋浴。
- 玄关 -
进门玄关直接对着做了一排矮的鞋柜,上门是玻璃隔断做装饰,空间通透,使用又美观。上海装修设计进门左侧靠主卧的墙体也做了一排到顶的高柜,鞋柜+收纳柜一体,中间镂空设计方便放置随身进出的物品钥匙包包,使用率很高有很方便哦。
- 客厅 -
客厅餐厅采用大面积的木质元素搭配灰色质感沙发,温馨,简约大气。
原有的客餐厅使用空间很小,把厨房和卫生间相对减少一部分面积,整个开放式的客餐厅空间也相对变得比较宽敞。
利用木饰面做的电视背景墙,电视还没有放上去,我们就去拍摄啦,左边是厨房,右边是卫生间,门都是采用玻璃材质,这样客厅空间光线也比较充足,视觉上也比较宽敞通透。
电视柜冷暖色调双拼搭配,简约时尚。

楼梯经过巧妙的设计把阳台推出去利用阳台空间搭建楼梯,楼梯下面也是充分利用起来,靠墙做成吧台,下面嵌入电器烤箱,微波炉,洗衣机,收纳充足。 利用楼梯台阶把客餐厅的空间功能区域划分,空间视觉却又协调统一。
- 餐厅 -
从餐厅看客厅,餐厅设计到玄关柜的后面,简约精致的餐椅灰色系的质感搭配和沙发的色调相互呼应。
从餐厅看卧室,楼梯靠窗设计,也不影响光线进入餐客厅的空间。直对的卧室左右两边的柜体也是选用材质统一的色调,上海装修设计左边是收纳鞋柜,右边是嵌入式的冰箱柜,空间上整体一致,又有神秘感。主卧门采用黑色边框玻璃折叠门,不仅可以纳入光线,又节省空间,平时敞开式的空间通风效果也很不错哦,这卧室一侧还可以选择窗帘搭配,休息的时候又创造出独立的舒适睡眠环境。
从进门玄关看餐厅,因为顶部有梁,错落的吊顶处理让高度有了延伸的感觉,深浅色系的搭配也让空间有了层次感。
深灰色硬朗线条的楼梯扶手搭配暖色木质台阶,墙面大面积采用屋主比较喜欢的薄荷绿搭配,呈现一种清新温馨的居家环境。
- 厨房 -
厨房只有2.9个平方,餐厅一侧做的西厨吧台,中西厨结合。清新跳色的瓷砖搭配干净清爽的中厨环境。