





顾客无不被螺旋式上升空间打动。“螺旋式上升”的概念始于哲学命题,也是事物发展过程中现实必然出现的表现形态,它表明事物从简单到复杂、从最初到未来的发展不是直线式的,而是近似于一串螺旋的曲线,即由自身出发,仿佛又回到自身,长沙宝马4S装修设计并得到丰富和提高的辩证过程。相信通过螺旋式上升的合纵连横空间感染力,让BMW宝马的忠实拥护者们感受到BMW文化传承中现在与未来的领创精神。
Customers were all moved by the spiral upward space. The concept of " upward spiral" comes from a philosophical proposition, and is the inevitable form of expression in the process of the development of things. It shows that the development of things from simple to complex, from the beginning to the end is not linear, but similar to a series of spiral curves that started from itself, and seemingly returns to where it began. In reality, it grows more abundant and gets promoted in the period. It is believed that through the vertical and horizontal space appeal brought by the upward spiral, BMW's loyal supporters will feel the spirit of innovation in the BMW cultural inheritance from present to the future.
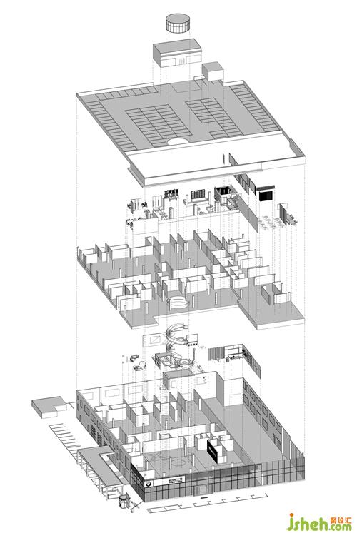
轴测爆炸图
Axonometric Exploded Diagram
轴测动线图
Axonometric Circulation Diagram
建筑南立面图
Southern Facade View of the Building
建筑西立面图
Western Facade View of the Building
更多长沙宝马4S装修设计请关注聚设汇装修平台: