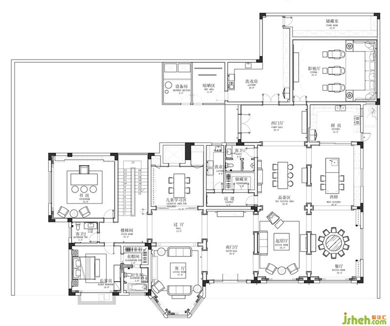
设计公司:筑道国际设计事务所
项目面积:940平米
项目风格:法式新古典
客厅:客厅是挑空的空间,大理石的背景,挑空的跃台与楼下空间的互动,欧式的罗马柱等等都彰显了别墅的气势与豪华。空间的设计颇具法式新古典风格,欧式壁炉、油画,起到了画龙点睛的作用;欧式线条的运用增加了整个空间的高贵气息。别墅装修设计

起居厅:整个起居厅是非常具有空间的气势,四个拱形门洞很好的与门厅、餐厅互动起来,整个区域既有独立又有对称。整个空间在色彩上充满着浪漫的气息,经典的蓝色绒布材质,印花地毯,顶面弧度的线条令人眼前一亮。别墅装修设计



