设计主笔 周澄贵
施工团队 居众装饰罗湖公司
项目地址 深圳盐田
项目性质 二手房改造
总造价:硬装二十二万
用材:橱柜--欧派,地砖--欧神诺,电视背景墙砖--宝路莎, 电器--方太,涂料--威罗,洁具--科勒,铝合金--壹号门窗
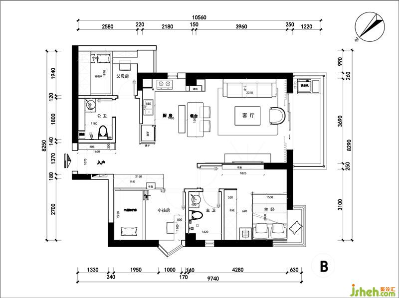
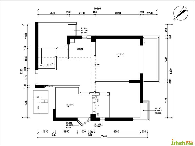
原结构:厨房空间较小,收纳有限,餐厅位置小,动线略憋屈,线面不够规整,客厅空间感不足。客厅吊顶天花装饰略显琐碎,并将整体层高压低。 房间利用率较低,现有功能不足。 左下角房间的衣储在室内不便打开。室内设计师
改造后:厨房与客厅打通,空间感加强,厨房空间局促得到改善,增大了餐厅区域。L型的橱柜设计简洁方便打理,可利用空间增大。开放式厨房同时促进了家人的互动,让家庭氛围更有温度。每个房间充分利用空间,衣储功能增加,均设置了书桌功能区域。左下角小孩房朝向室外面向过道打开,利用了过道空间,同时室内便于放置架子床。为了掩盖厨房和餐厅位置的丁字形梁位,整个空间仅以两个层次的平顶处理,大方简洁。
室内设计师



客餐厅整体空间线条干净、利落,简约的实木家具带来温润感,创造出空间轻松、舒适的氛围,以蓝色系坐垫和明黄装饰物点缀,令原本的浅棕墙与简单的木质家具拥有了灵动的气质。地面简洁处理,天面墙面地面色彩层次分明而协调。橱柜台面和储柜台面同一材质,简洁协调。酒柜和橱柜一体设计,这是小空间有温度的创意,增加了功能和美感。酒柜边缘设置了一定宽度的边框,这样显得更有层次。侧面边框设置小隔层,刚好可以放调味。这些细节都增加了使用价值和同时也增加了美感。室内设计师

利用过道空间,小孩房衣柜朝外打开,增加了收纳也方便了取用。冰箱侧面和衣柜之间空间略显逼仄,设计以镜面,拉开了空间,仪容镜恰到好处的出现,让生活日常更美丽。门把手选择精致,让简单的过道提升了质感。