设计机构:一度经纬设计
项目面积:245㎡
项目地址:广东深圳
对于一个艺术爱好者来说
如果能够打破常规
完全自由进行创作
其成绩往往会是惊人的
——卓别林
现代人的脚步匆匆,生活在快节奏的城市。家,是唯一的港湾。在忙碌过后,回到温暖舒适的家中,享受与家人相处的欢愉,内心安然,回归生活本质。

家,蕴藏着一个个平凡的幸福瞬间。本次项目的业主拥有一个幸福的小家庭,希望能给两个可爱的小女儿一个安全、舒适的成长环境,营造一个温馨的家。若没有家人的陪伴,房子就变成了一个空洞的容器。
塞•约翰生说过:“在家中享受幸福,是一切抱负的最终目的。”245㎡的新家拥有许多拐角,在项目沟通时,业主表示,希望能把所有的拐角全部做成圆弧形的,以提高房子的安全性。
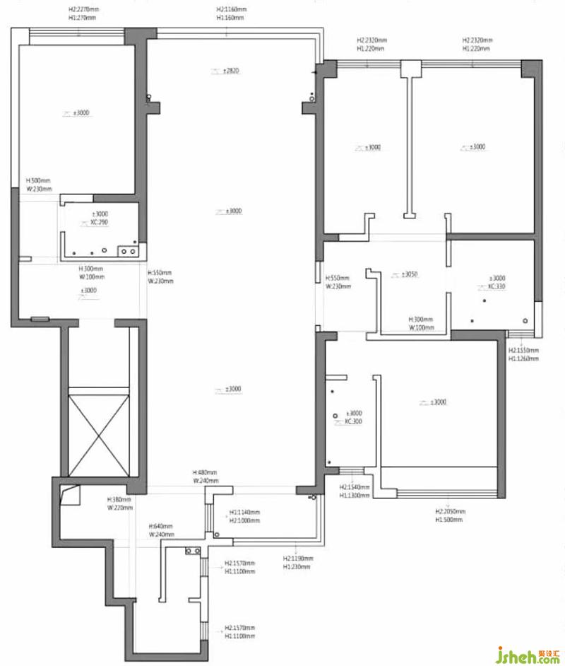
△原始结构图
在本次家居设计中,设计师遵循业主的想法,进行了一次大胆的尝试,巧妙地将弧度与拐角结合起来,而实际落地效果与设计方案符合度高达80%。
【效果图与落地实景对比】
△电视背景效果图
△电视背景实景图
△沙发背景效果图
△沙发背景实景图