下沉式庭院的存在,將地下空間的質量完全升級,大面積的門窗設置,將自然採光發揮最大化,與此同時,釋放室外活動休閒功能,隱于內的庭院給人帶來濃郁的歸屬感。
The existence of sunken courtyard can completely upgrade the quality of underground space, and the large area of doors and Windows can maximize the natural lighting. Meanwhile, it can release the leisure function of outdoor activities and bring a strong sense of belonging to the hidden courtyard.
/ 軟裝飾品精選 /
设计公司



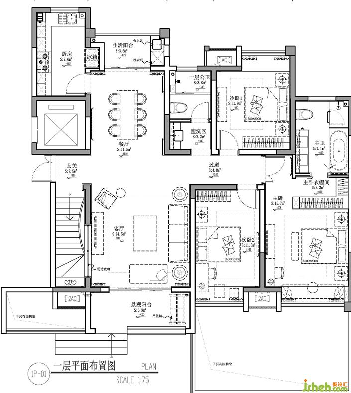
/ 平面图 /


