欢迎光临聚设汇,装修找设计就上聚设汇!
   咨询电话:15602987227
登录    注册
聚设汇
首页 > 家装 > 广州别墅装饰:源居

广州别墅装饰:源居

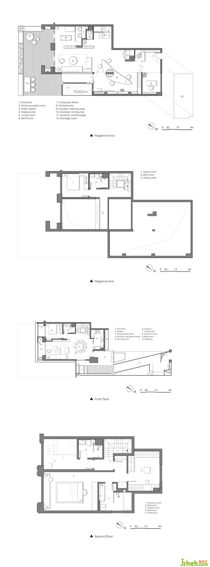
生活的美好,是设计用了心。一墙一地,一竖一横,纵横之间彰显别致。广州别墅装饰触摸大落地镜子,看到的都是美好生活的模样。大理石长条洗漱台,双出水龙头,壁挂式马桶,品质,离你如此之近。

一宅容天下,一墅定人生,岁月清浅,归属与精致并存。幸福美满源源不断,欢声笑语源源不断,让家都能记载着每一时刻的生活痕迹。

更多广州别墅装饰请关注聚设汇装修平台:

深点空间设计PDD创办人&设计总监

设计收费:面议       

擅长类型: 住宅,酒店,会所

在线咨询

扫描二维码关注我们的微信

深圳市聚设汇文化传媒有限公司
主编热线:15602987227
总部:深圳市罗湖区梨园路128号宝能汽车大楼416单元
佛山、东莞、成都、重庆、福州、厦门、南昌、武汉、
杭州、苏州、温州、郑州、长春、沈阳、贵阳、柳州、
哈尔滨、九江等城市设立办事处
© 2017-2021 Jsheh.com 版权所有 粤ICP备17079093号
展开
回到顶部