项目机构: 米平方设计
设计主案:郑济民
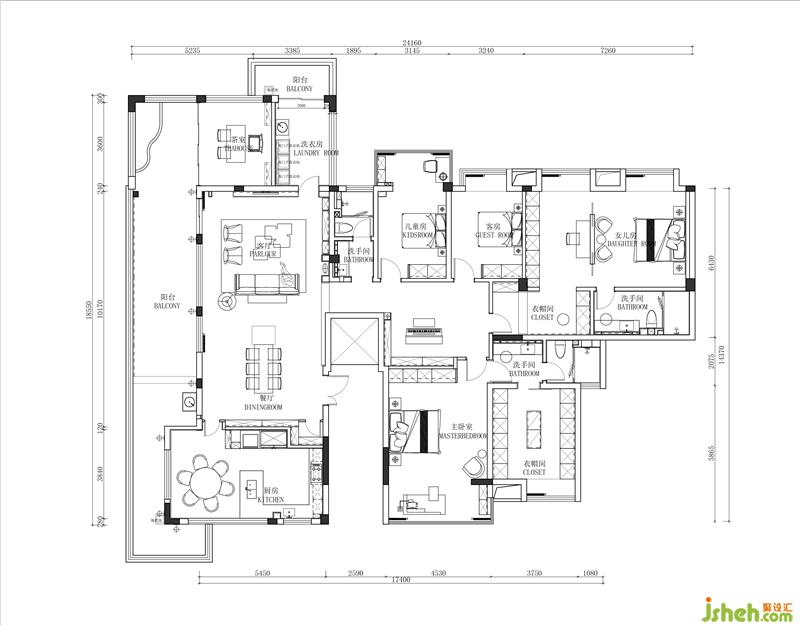
平面图
随着时代的变化,人文环境经过时间的变迁,产生了各种各样的思潮,各类不同家庭结构的涌现,住宅设计需求趋向多元性,尽管如此,当中典型的三代同堂家庭结构的设计,仍然不容小觑。
客厅改造后的落地窗,将窗外远处连绵不断的山景犹如绿黛,圈进室内,实现了室内与室外完美的过渡,将自然与建筑完美的结合在一起。当午后,光线照进来时,客厅里洋溢着暖暖的阳光,非常惬意!
客厅与餐厅没有任何隔墙的设计,不论是坐哪都能看到电视,去掉繁杂,保持着大空间,在软装色调上也保持着统一。


有趣的是这个空间隐藏着通向鞋间、厨房、露台、洗衣房、过道五个空间的门,虽然这样,但动线的安排是相互流动开放的,互不干扰。

从餐桌延伸出的岛台,不论家人围坐的用餐时刻,还是周末与小朋友一起做糕点、甜品,又或呼朋引伴轰趴,岛台肩负起更多社交功能,成为客厅之外另一个家庭中心。