
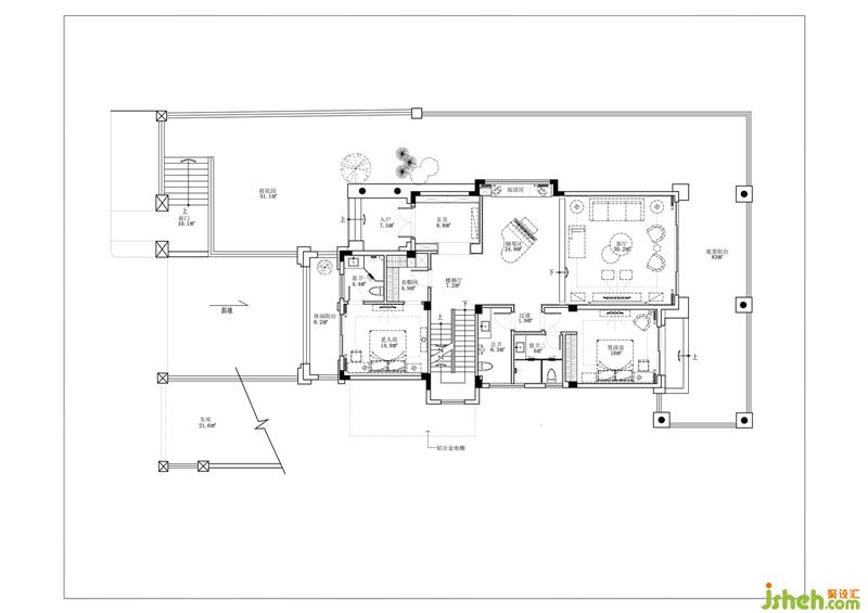
男孩房床头背景是经过变幻后的蜂巢概念,规整的几何排布益于孩子思维的拓展开发,不同色块的组合与千鸟格的搭配,是一种潜移默化的美学投射,孩子自由成长不受限。


男孩房
青灰的材质稳重而不失意趣,湖水蓝、烟墨绿、月光灰,软设在清新睿智的意趣里,增加了一些趣味的饰品,孩子的世界愈发童真且纯净。别墅装修设计

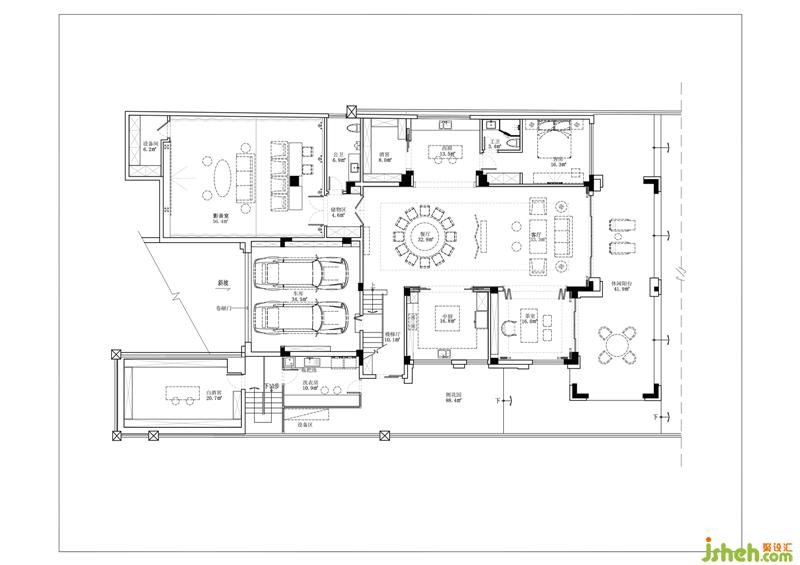
长辈房
长辈房设置在一楼,给予长者通行走动的便利,同时也多了与自然相拥的机会。全明落地窗摄入更多的光线,静静感受生活明媚的美好。米色调统筹了空间视觉的舒适度,设计用精简的家具取代华而不实的堆砌,空间里流连着简凝清雅的气质,宁然而惬意。
赏.
不出户
赏宇宙万象之浩瀚
观自然四时之璨烂
是谓有间

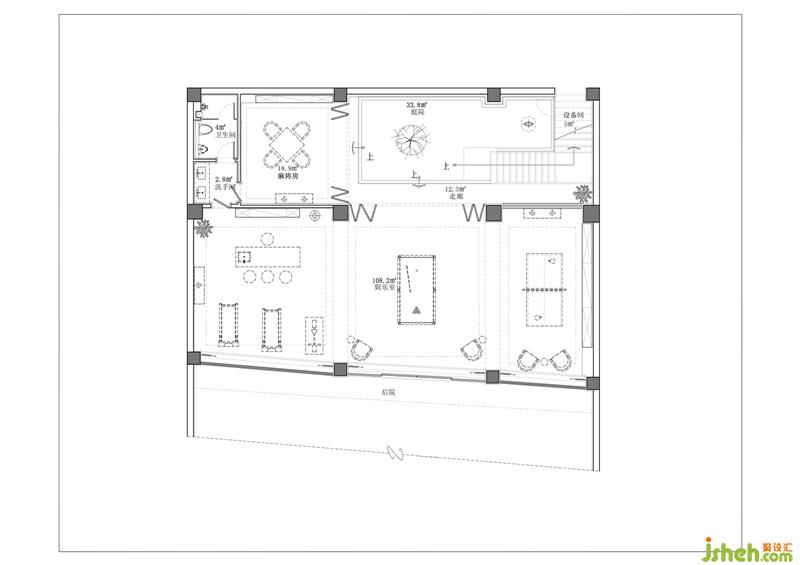
影音室
负一层的影音室营构了一个家人互动的休闲场景,智能化影音设备在有限的空间里提供了无尽的想象,通过丰富多彩的感官体验令情绪得到放松。
庭院
后记:
如同蜜蜂筑巢一样,每一个美好安心的家都是家人对美的向往。我们所做的设计并非直白的表达,需要考虑居者的居住习惯和安全健康,让家人在恬淡的生活中慢慢感受到温度与爱。别墅装修设计



