

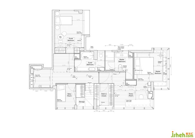
入门右手下楼整个静区呈现在眼前,三房两卫的格局,与动区相同的面积,由于区域功能划分相对单一,设计师巧妙地埋下了较大的空间留白,这让卧眠与梳妆这种私密性很强的生活细节在温馨感和仪式感上都拿捏得刚好。
主卧是整个静区的核心,书房型卧室的形制,面积占了整层的近一半。打开主卧门,右手是一个全明步入式衣帽间,柜门打开你会发现收纳功能分隔很灵活,结构层次很分明,储物空间很完整;过衣帽间便是主卫,依旧是全明带窗的,双台盆、淋浴间、大浴缸,尺度很舒服,细节很到位,该有的都有了;卧房藏在开放式书房的深处,全景的落地玻璃幕墙,外延式的飘窗设计给人一种起居、学习、办公都飘在云上的错觉。

随着80、90后开始在社会上担纲栋梁,在职场里崭露头角,在家庭中撑起责任,代表着他们价值将引领未来香港的主流。现在的房屋设计者也越来越关注香港中生代阶层的审美和习惯,这将成为趋势。对于中坚力量的他们来说,再好的房子也只是房子,而家才是辅助情感与认真生活的地方。理想的家之于他们的很简单,烟火气,人情味和生活感,生活港湾和灵魂居所。

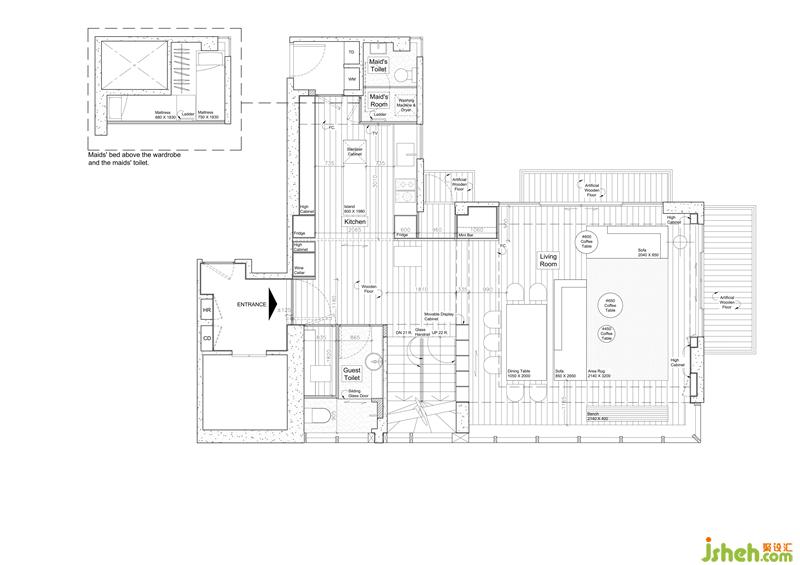
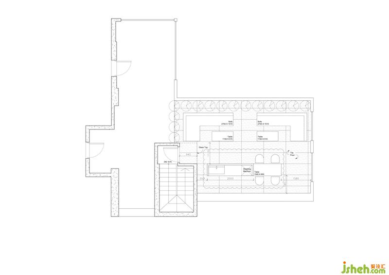
▼项目平面图


更多室内设计师资讯请关注聚设汇装修平台: