欢迎光临聚设汇,装修找设计就上聚设汇!
   咨询电话:15602987227
登录    注册
聚设汇
首页 > 家装 > 140㎡吹进阁楼里的北欧风

140㎡吹进阁楼里的北欧风

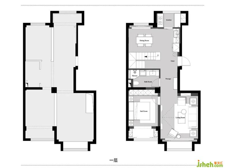
把事情变得简单而又实用,这是北欧人行事的基本准则。将卧室中的装饰量,特意地保持在了最低限度,空白的墙面、顶面、衣柜门面,以及纯黑色的背景墙,这些元素共同打造出了这一空间祥和安稳的睡眠氛围。

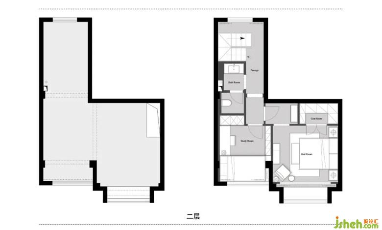
由于一层楼梯间位置的改变,二层空间也随之需要重新地设计划分。设计师将整个空间规划出两间阳面的卧室和一间干湿分离的卫生间。原始存在的管道和排风道,经过设计后,成功地隐藏在了柜体当中,既保证了空间的美观,也方便了日后的检修工作。

无论是地板、墙面,还是定制家具,这些都包含了大量的木质元素,配合了整体空间的宽敞明亮和自然朴质的味道。自然而又彰显人文,有颜值也有质感。 

凌图空间设计

设计收费:面议 元/平             

擅长类型: 家装、豪宅、别墅

在线咨询

扫描二维码关注我们的微信

深圳市聚设汇文化传媒有限公司
主编热线:15602987227
总部:深圳市罗湖区梨园路128号宝能汽车大楼416单元
佛山、东莞、成都、重庆、福州、厦门、南昌、武汉、
杭州、苏州、温州、郑州、长春、沈阳、贵阳、柳州、
哈尔滨、九江等城市设立办事处
© 2017-2021 Jsheh.com 版权所有 粤ICP备17079093号
展开
回到顶部