


夜晚,泡个舒适的泡泡浴,月光与之相伴
浴室以冷色系为主,简洁而高雅。不用再担心清晨因浴室空间不够而着急,卫生间区域拆除了原本的通风井,面积扩大。空间内部采用三分离式,大双盆设计,上厕所洗澡梳妆各不耽误。

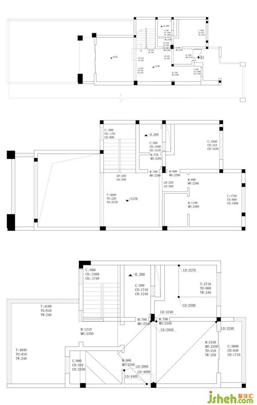
原始户型分析
优点:
️ ① 别墅挑高层,空间层次感较好,户型方正。
️ ② 周围环境舒适,环山抱水。
️ ③ 有私人花园空间,露台等等。
不足:
️ ① 原入户空间太小无法满足收纳及观赏需求。
② 房屋公共区域较小,无法更好的满足日常所需,需要考虑如何使空间变大,如何满足使用者的舒适性。
③ 进厨房空间太绕,厨房窄长,采光较差。
️ ④ 公共区域视野较差,各个空间有其独立的使用功能但彼此间缺乏交流性。
户型分析
① 入户大门向外推,打造了独属于自己的入户玄关空间,客房墙体内推,增加玄关部分的收纳。
② 进厨房太绕,改变了厨房入口到玄关处,厨房入口隐藏在墙里的玻璃联动门,使得空间更加开阔,厨房与餐厅之间增加了一扇玻璃窗口,解决了空间的交流性以及采光问题。
③ 拆除了原本的通风井,将一楼卫生间内部扩大重新布局,同时也增加了公共区域面积。
④ 将客厅阳台纳入客厅室内使用,使得客厅空间比例更加协调。客餐厅之间多余的墙体拆除,空间视野更加开阔。
⑤ 三楼的主要功能是主人家的卧室,我们减少了两个台阶做了现浇楼板,扩大了公共区域,同时将衣帽间向外扩大,保证足够的收纳。三分离式的卫生间,大双盆设计,上厕所洗澡梳妆各不耽误。
更多别墅设计请关注