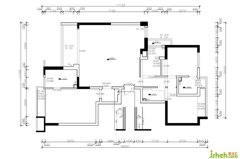
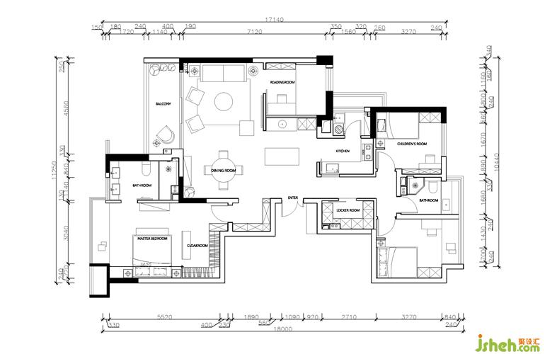
舍得。把以前的两个卫生间取消一个,把做一个独立的黑卫空间做成储物间,另一个小的卫生间由于原尺寸较小,放大可能性不大,两边卧室都要作为小朋友房间使用,所以我们充分利用每个空间尺寸,我们把洗面盆考虑在窗台上,不占用原卫生间地面空间,成都装修设计同时考虑一个壁挂式马桶,马桶上方考虑成储物空间,洗手台放置在洗手台上之后,在洗漱刷牙时而且可以看到外面麓湖的景色,不错过每一处美景。



舒适。酒店式的套房式布局,开放式的衣帽间空间,把梳妆和衣帽间结合在一起,与休息区之间用一个玻璃的隔断方式隔开,衣帽间采光也得到解决,房屋视觉面积变大。卫生间也是把原来进门对着镜子的问题进行解决,成都装修设计把洗手台设置在窗洞方向,早上起来洗漱时可以看到麓湖的湖面,同时这边也是朝向东边,太阳直接照射进来,迎接一天最美好的开始。

更多成都装修设计请关注