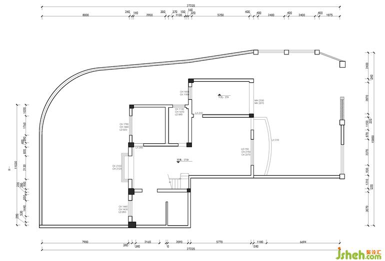
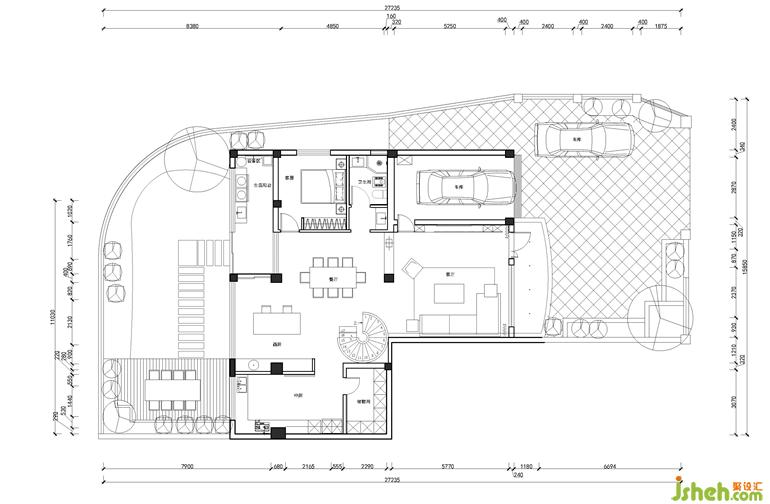
结构上的调整是为了能够更好解决原空间所存在问题。将原楼梯方向改变,成都装修设计为采用钢结构打造的旋转楼梯,不占一楼太多面积的同时保证其它空间的合理性。明亮温暖的色调与轻盈灵动的线条让整个楼梯成为工艺品般的存在,承载了空间的艺术美学。
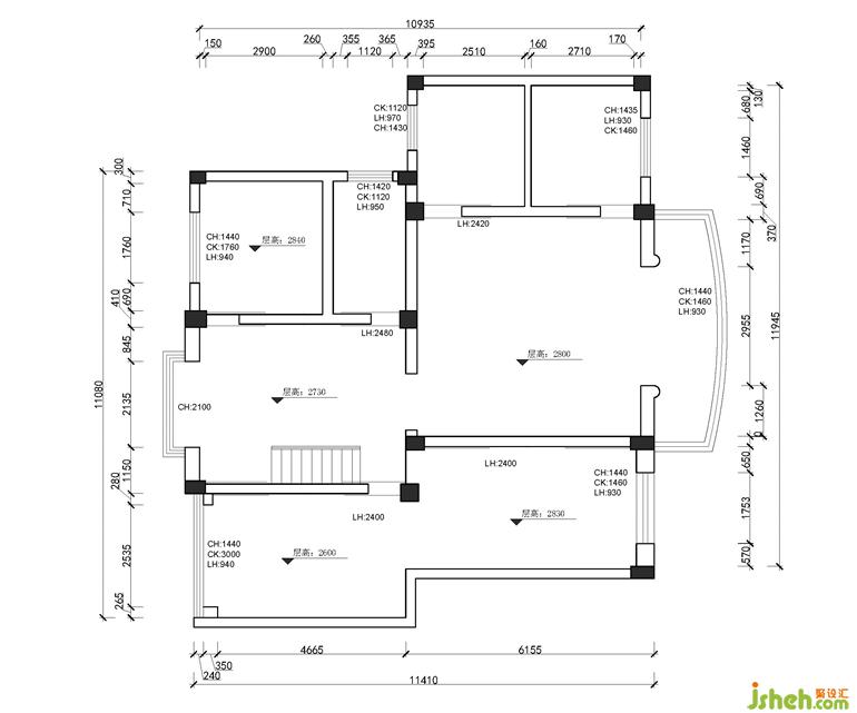
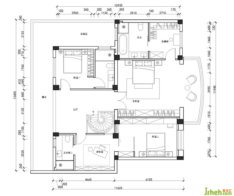
旋转楼梯的设计使得空间利用率增加,我们把以前餐厅、厨房、次卧室位置往花园进行延伸,厨房空间变大,设计将餐厅位置改到原次卧室位置,多出来的区域设计成西厨空间,厨房门暗藏至墙后,扩大和改变入口位置,解决以前厨房入口不合理,把餐厅、楼梯、西厨、中厨很好的结合在了一起。二楼卧室空间以干净有序的构成来表达空间的简洁,并将卫生间和衣帽间结合,更方便使用。









更多成都装修设计请关注