项目地址:成都 · 温江
设计机构:STUDIO.Y余颢凌设计事务所
设计团队:余颢凌、尹杰、阴倩、王宏成
项目品宣:徐彩红
空间摄影:张骑麟
项目面积:350㎡
完工时间:2019年10月
整个设计始终都以尊重和满足业主的切实生活需求为前提,在此基础上努力为业主创建一种美好的生活方式,将业主的性格、独属的生活印记以及家庭的文化烙印有机相融,朴实自然,舒适实用,从人到物,从人到空间,都充溢着平凡而真挚的爱与温暖。让空间与丰富细腻的人性相遇,绽开火花灿然,才愈发传递出动人的温度。
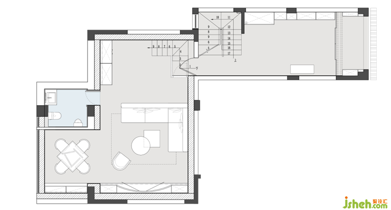
-1F平面图
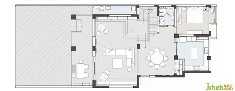
1F平面图
2F平面图
空间最初的入户门厅设置在一楼餐厅旁,业主归家后需要先从负一楼车库出来再通过公共楼梯才能入户,为了解决这种不便,我们将动线进行了调整与优化,把入户门厅移到负一楼车库处,使业主的归家线路更为合理、便利,并利用车库的充裕空间增设大鞋柜与换鞋厅,增加收纳空间的同时,也营造了良好的卫生环境。
在改造入户动线的同时,我们将楼梯原有的单向动线进行了调整,打通负一楼的楼梯间,将其作为连接一楼会客厅和负一楼影视厅的交通枢纽。
为了兼顾负一楼下沉空间的高度,我们在一楼休闲厅的书柜处做了整体抬高的平台,使之与负一楼的楼梯间一起,形成更为错落有致的空间层次感。

客厅以低调内敛的灰色调为主,结庐人境,无车马喧,温文尔雅。简约方正的线条勾勒出家具陈设的清朗俊逸,富于几何的理性魅力。

