项目名称:新鸥鹏教育城
项目地点:中国 . 重庆 . 江北
项目面积:167㎡
项目造价:70万元
施工单位:重庆仓古装饰工程有限公司
主持设计:袁新智
设计单位:山点水建筑设计事务所
设计范围:空间设计、产品设计、灯光设计
主要材质:涂料、大理石、瓷砖、木饰面、原木、棉麻、
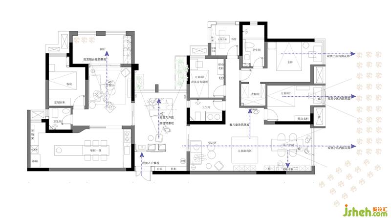
平面图
我们是都市的行者,于繁华中穿梭,却渴求一个温暖安静的桃源。能与自然、与孩童、与爱共同成长,相互滋养。还别说,就有一个温暖之家在这一方居所里随时光流转满溢着天伦之乐。
每次归家,一推开门,眼前就有光和景喜悦相迎,暗藏在家里的这番好光景掸落了一身风尘疲惫,满怀期待地享受家的惬意与温暖。
圆润朴实的象眼,连接着门厅与内庭花园,既含蓄又通透在虚实之间跳动变化,相映成趣。

能在霓虹之间穿梭流淌,也能在小院里看绿植尺寸生长观察四季变换,感受生机盎然。一方花园链接着两个小主人与大自然的亲密关系 温润质朴的塑木地板与地砖区别开来圈出一块,可以随意落脚的自然乐园肌肤所及,也变得友好亲密。
花园角落里安放了一椅一几,便于在每一个阳光满溢的午后惬意阅读,即使渐渐被睡意包裹也可缓缓松开手中的书籍,进入沉沉的梦乡。而此刻倾斜的阳光透过窗户来到身上、椅子上、地板上和墙上。随着时间的流动阳光也开始流动缓缓温暖着这个家庭的相伴时光。
另一个公共空间依旧通透方正,靠近阳光的区域是品茶待客的不错选择或挑个时间开一场短暂的家庭会议,规矩又不失和谐是家人之间张弛有度的相处之道。
两个小主人的玩耍区不需要过多堆砌,只需要在这里留出自由发挥的空间,每个成长阶段定有不同可爱景象。
