欢迎光临聚设汇,装修找设计就上聚设汇!
   咨询电话:15602987227
登录    注册
聚设汇
首页 > 商业 > 秋 日 私 语

秋 日 私 语

项目名称:星岸19#别墅样板间

项目地点:广东东莞樟木头

项目面积:327㎡

设计公司:袁鹏鹏空间设计顾问有限公司

设计风格:现代轻奢

-1F平面图

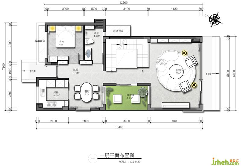
1F平面图

2F平面图

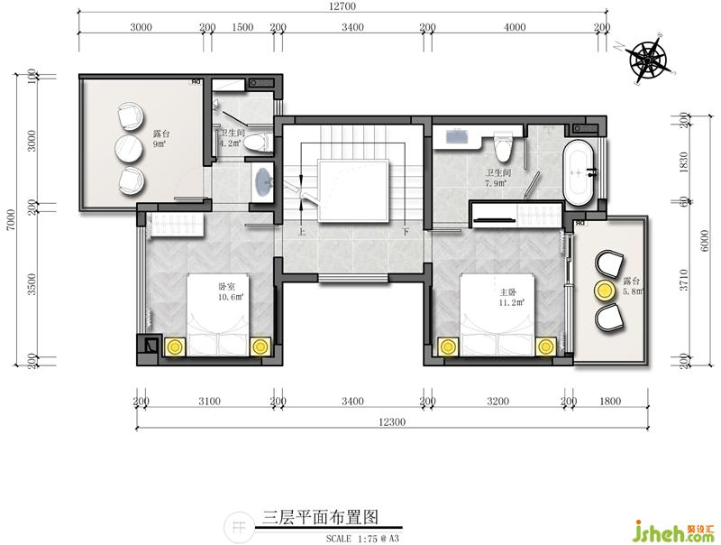
3F平面图

3F平面图

持续着的声音,是一种低吟心碎的叹息,是一种安静的哭泣雨滴在脸上滑落,并带着优雅轻轻的你继续呼吸对你的要求,我并不是都能回应但如果可能,我愿意给你天使的翅膀带你去实现愿望的地方拥有超越自己的力量

一 层 丨 客 厅

一 层 丨 餐 厅

袁鹏鹏(香港)设计师事务所 总设计师 东莞市袁鹏鹏空间设计顾问有限公司 总设计师 东莞市嘉尚装饰设计工程有限公司 艺术总监

设计收费:面议 元/平             

擅长类型: 豪宅,商业,办公空间

在线咨询

我的作品更多>>

扫描二维码关注我们的微信

深圳市聚设汇文化传媒有限公司
主编热线:15602987227
总部:深圳市罗湖区梨园路128号宝能汽车大楼416单元
佛山、东莞、成都、重庆、福州、厦门、南昌、武汉、
杭州、苏州、温州、郑州、长春、沈阳、贵阳、柳州、
哈尔滨、九江等城市设立办事处
© 2017-2021 Jsheh.com 版权所有 粤ICP备17079093号
展开
回到顶部