▼茶室
闻一曲悠然,饮一壶好茶。柜体线条简单明了,暗藏于柜内的灯管让古玩藏品脱离平庸,与生机勃勃的树影形成对偶,创造出一副鲜活有趣的意象画卷。

松柏盆景苍劲翠绿,无论盆景架还是盆景本身都具有独到的古韵特色,亦与后方花瓶内的红梅形成对比,给人赋予无尽遐想。

寻茶香入室,素雅质朴的茶室映入眼帘。黑色线条将空间拉伸展开,巧妙的空间配色,婉转表达了空间的气质格调。米色桌布上的水墨画和背景题字相映成趣,艺术的蕴涵与萦绕的茶香交融为一体深圳会所装修设计。

设计师考量视觉美学,为将墙面题字融入氛围,选用水墨花纹的坐垫靠枕进行点缀,让空间更有清逸雅韵。玉碗光含仙掌露,金芽香带玉溪云。邀三五好友,聚于雅室,思大业品茶香,生活本该如此。
化繁为简,以简驭繁。最好的设计便是一切刚刚好。
原始平面图一
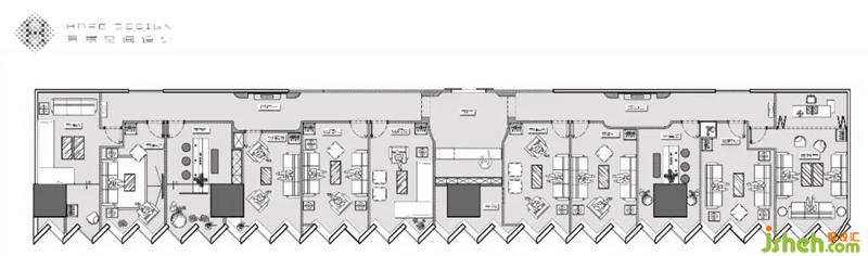
平面布局图一
原始平面图二
平面布局图二
▼关於洲泓荟
洲泓荟(深圳)是一家坐落于深圳CBD的高端会员制俱乐部,主要面向各大上市公司、金融机构的中高层和行业精英人士,提供线下会客、交流、聚会、路演、活动的各类场地和综合服务(主打私人会客厅/BC会议室),并逐渐发展线上平台和圈层体系。洲泓荟的装修、产品、服务均源自与众多上市公司和知名品牌的战略合作,并由专属客户经理服务,确保高端品质和客户体验。
俱乐部毗邻深圳会展中心和Four Seasons、Ritz-Carlton、Shangri-La、皇庭V等众多五星级酒店和卓越中心、皇庭中心、大中华国际交易广场、平安金融中心等(超)5A写字楼。
俱乐部所在的深圳能源大厦整体属于现代简约风格,独特的波纹外观设计,建筑与自然完美融合,交通和停车十分便利。
更多深圳会所装修设计清关注聚设汇装修平台: