设计地址丨深圳·南山
项目名称丨南山花园
项目设计丨原景空间设计
屋是墙壁与梁所组合,家是爱与梦想构成。
The house is composed of walls and beams, the home is composed of love and dreams.
——泰格尔
——tiger
四层楼的叠层别墅,业主和孩子都期望能有自己的专属独立空间,也希望提升整体房间采光的通透品质。深圳别墅设计师于是将历时光阴的房屋逐步检视修整,以简单无杂的框架容纳生活,使谈笑耳语与弥留身影相互萦绕,将日常轨迹深耕于每个角落。
抛开城市杂乱的抒怀,回归私人空间定义。经由化繁为简、解析设计语言,结合居家空间的理性,将元素以感性形态接续投放,来隐喻充满魄力的气场,并搭衬着有沉静本色的家具,从此展开翠林山居的生活光景。
▼丨客厅

玄关进门位置层高偏低,将玄关吊顶、电视墙面均采用木饰面,颜色的统一视觉延伸,深圳别墅设计师使得整体空间层次丰富从而减少高度所带来的压抑感,同时墙线与天花灯槽相应连贯,并对功能区域有着明细的规划。
举步往上,宽大的落地窗迎接充足的阳光斜照四处,垂直距离的位置变动,几何观感舒缓递进,在此感受时间漫流,捕捉那份从容自在。
▼丨餐厅
背景墙采用了拼接装饰的设计手法,与客厅玄关上顶处呼应材质的统一。餐桌以雅士白渲染氛围,其自由惬意的纹理为空间增添一丝灵动,简约中又透露着精致。
▼丨厨房
为传统的封闭式厨房开一扇"窗",引进入户花园的光线与视野,创造出更多互动性的同时,也让枯燥的厨房不再单调。
▼丨过道
灯带贴紧墙壁却又给人一种直线的错觉,搭配金属色的落地旋转镜呈现一种现代美感。楼梯皆以实木扶手+巧克力色玻璃围合防坠护栏,深圳别墅设计师并考虑长辈手臂的握力做了宽面设计,带给空间稳定的色彩。
▼丨卧室

三楼独立主卧,在保持室内明亮下,以软硬材料铺陈房间来展现温馨质感。被毯、靠垫和绿植拼成慵懒一刻,边柜与挡板的颜色相辅相成无形中让空间产生了关联。
设计一整面的嵌入式衣柜,以获得空间的流畅动线与满满收纳。进入阳光房,全方位的视野仿佛和自然环境完全融合,内部设计开放式的生活区,深圳别墅设计师促成有用的休闲场景让业主随手可得放松的日常点滴。

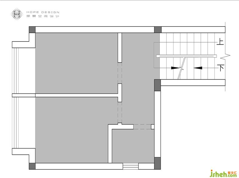
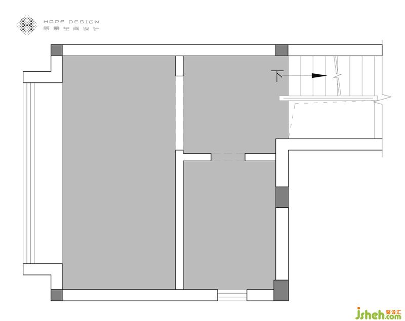
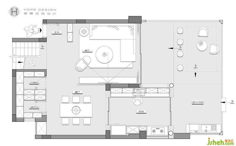
一楼原始结构图 / 一楼平面布置图

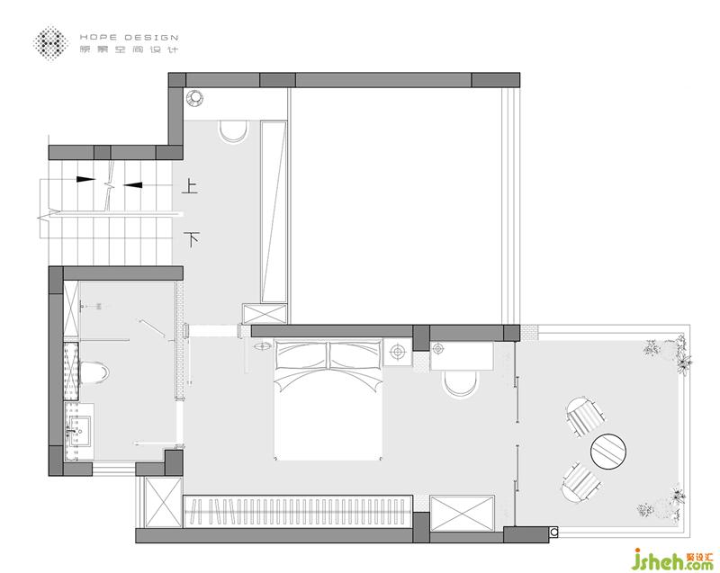
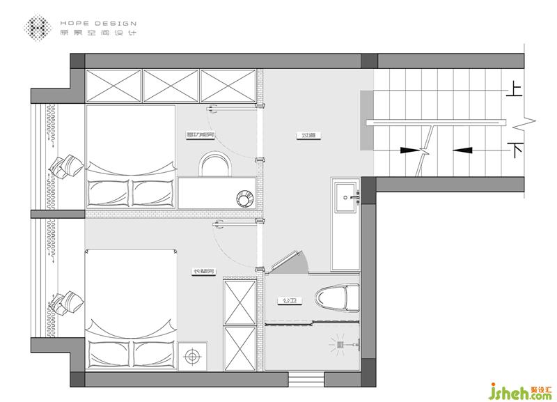
二楼原始结构图 / 二楼平面布置图

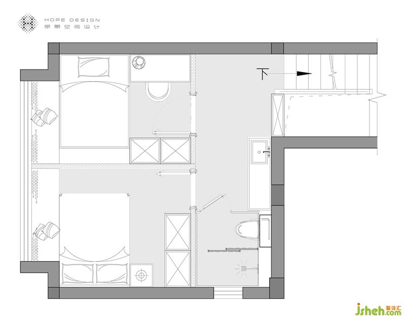
三楼原始结构图 / 三楼平面布置图

更多深圳别墅设计请关注聚设汇装修平台: