欢迎光临聚设汇,装修找设计就上聚设汇!
   咨询电话:15602987227
登录    注册
聚设汇
首页 > 家装 > 扬州第五园450m²别墅装饰 | 飞行人的港湾

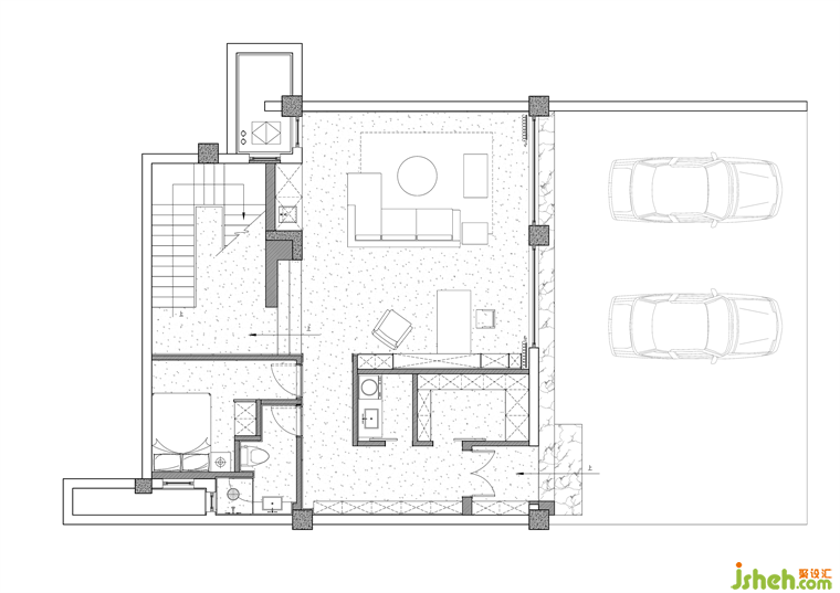
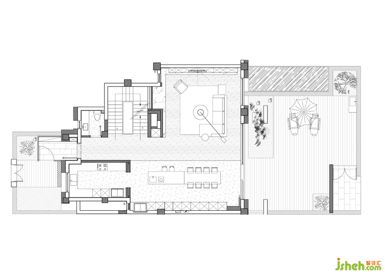
扬州第五园450m²别墅装饰 | 飞行人的港湾

夜幕降临,西窗烛影,雨打芭蕉……

便是男主人最享受的意境,

飞久了的疲惫,

此刻才能得到缓解。

更多扬州别墅装饰请关注聚设汇装修平台:

苏州一野室内设计工程有限公司

设计收费:300 元/平             

擅长类型: 家居住宅,餐厅,别墅豪宅,商业展示,文化空间

在线咨询

扫描二维码关注我们的微信

深圳市聚设汇文化传媒有限公司
主编热线:15602987227
总部:深圳市罗湖区梨园路128号宝能汽车大楼416单元
佛山、东莞、成都、重庆、福州、厦门、南昌、武汉、
杭州、苏州、温州、郑州、长春、沈阳、贵阳、柳州、
哈尔滨、九江等城市设立办事处
© 2017-2021 Jsheh.com 版权所有 粤ICP备17079093号
展开
回到顶部