欢迎光临聚设汇,装修找设计就上聚设汇!
   咨询电话:15602987227
登录    注册
聚设汇
首页 > 商业 > 漳浦玺院样板房设计:时光无恙,岁月印象

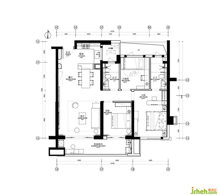
漳浦玺院样板房设计:时光无恙,岁月印象

座椅下的不规则小毯,添了点小女生独有的俏皮可爱。样板房设计桌面上不同寻常的几何造型摆件与极具想象力的挂画,增添奇思妙想的梦幻氛围。

更多样板房设计请关注:

壹为无限 无界为向

设计收费:面议 元/平             

擅长类型: 高端地产、精品酒店、商业空间、顶级私人住宅

在线咨询

扫描二维码关注我们的微信

深圳市聚设汇文化传媒有限公司
主编热线:15602987227
总部:深圳市罗湖区梨园路128号宝能汽车大楼416单元
佛山、东莞、成都、重庆、福州、厦门、南昌、武汉、
杭州、苏州、温州、郑州、长春、沈阳、贵阳、柳州、
哈尔滨、九江等城市设立办事处
© 2017-2021 Jsheh.com 版权所有 粤ICP备17079093号
展开
回到顶部